917 DESERT MOUNTAIN

Basic Information

List Status
Active
Property Type
Residential
Last Updated
MLS Listing Updated
Created
Address

917 DESERT MOUNTAIN
REUNION, FL 34747
United States

Current Price
$1,399,000.00
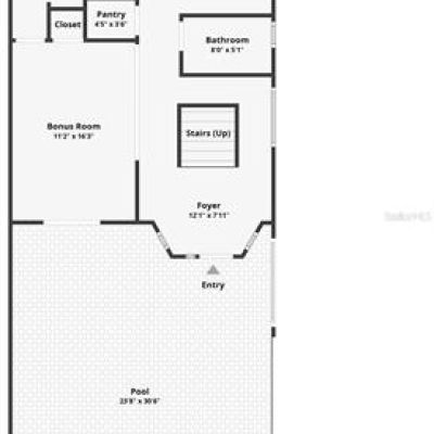
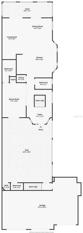
Square Feet
3584
Price Per Square Foot
$390.35
List Office Name
THE JERRY BARKER GROUP LLC
List Agent Full Name
Alyssa Barker
Subdivision Name
REUNION WEST VILLAGE 03A

Interior Information

Appliances
Bar Fridge, Built-In Oven, Convection Oven, Cooktop, Dishwasher, Disposal, Dryer, Gas Water Heater, Microwave, Range Hood, Refrigerator, Tankless Water Heater, Washer, Water Filtration System, Wine Refrigerator
Bedrooms
3
Bathrooms
6
Bathrooms Full
4
Bathrooms Half
2
Cooling
Central Air
Flooring
Carpet, Marble, Porcelain Tile
Heating
Electric, Natural Gas
Interior Features
Built-in Features, Ceiling Fan(s), Eating Space In Kitchen, In Wall Pest System, Kitchen/Family Room Combo, Living Room/Dining Room Combo, PrimaryBedroom Upstairs, Smart Home, Solid Wood Cabinets, Stone Counters, Thermostat, Wet Bar, Window Treatments
Pet Restrictions
See HOA Docs
Utilities
BB/HS Internet Available, Cable Available, Electricity Connected, Natural Gas Connected, Sewer Connected, Water Connected

Exterior Information

PropertySubType
Single Family Residence
Construction Materials
Concrete, Stucco
Exterior Features
Balcony, Courtyard, Garden, Hurricane Shutters, Irrigation System, Lighting, Outdoor Shower, Rain Gutters, Sidewalk, Sliding Doors
Foundation Details
Slab
Lot Size Acres
0.19
Lot Size Square Feet
8102
Roof
Concrete

Additional Information

Community Features
Community Mailbox, Deed Restrictions, Dog Park, Fitness Center, Gated Community - Guard, Golf Carts OK, Golf, Playground, Pool, Sidewalks
Country
US
County / Parish
Osceola
Postal Code
34747
Street Name
DESERT MOUNTAIN
Street Number
917
Street Suffix
COURT
Tax Year
2025
Total Acreage
0 to less than 1/4
Year Built
2008

Financial and Legal Information

Association Fee Frequency
Monthly
Association Fee Includes
24-Hour Guard, Cable TV, Community Pool, Internet, Maintenance Grounds, Manager, Pest Control, Security
Association Fee Requirement
Required
Association Fee
571
Cumulative Days On Market
12
Days On Market
12
Flood Zone Code
X
Flood Zone Date
June 6, 2013
Flood Zone Panel
12097C0040G
List Price
$1399000.00
Listing Contract Date
February 2, 2026
Monthly HOA Amount
571
Original List Price
1399000
Parcel Number
352527489200010480
Pets Allowed
Yes
Special Listing Conditions
None
Tax Annual Amount
9092.42
Tax Book Number
16-136-141
Tax Lot
48
Zoning
OPUD
Tax Legal Description
REUNION WEST VILLAGE 3A PB 16 PGS 136-141 LOT 48

Learn More About This Property

CAPTCHA
"