873 HARING
Basic Information
List Status
Active
Property Type
Residential
Address
873 HARING
MOUNT DORA, FL 32757
United States
Current Price
$525,000.00
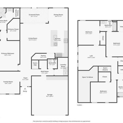
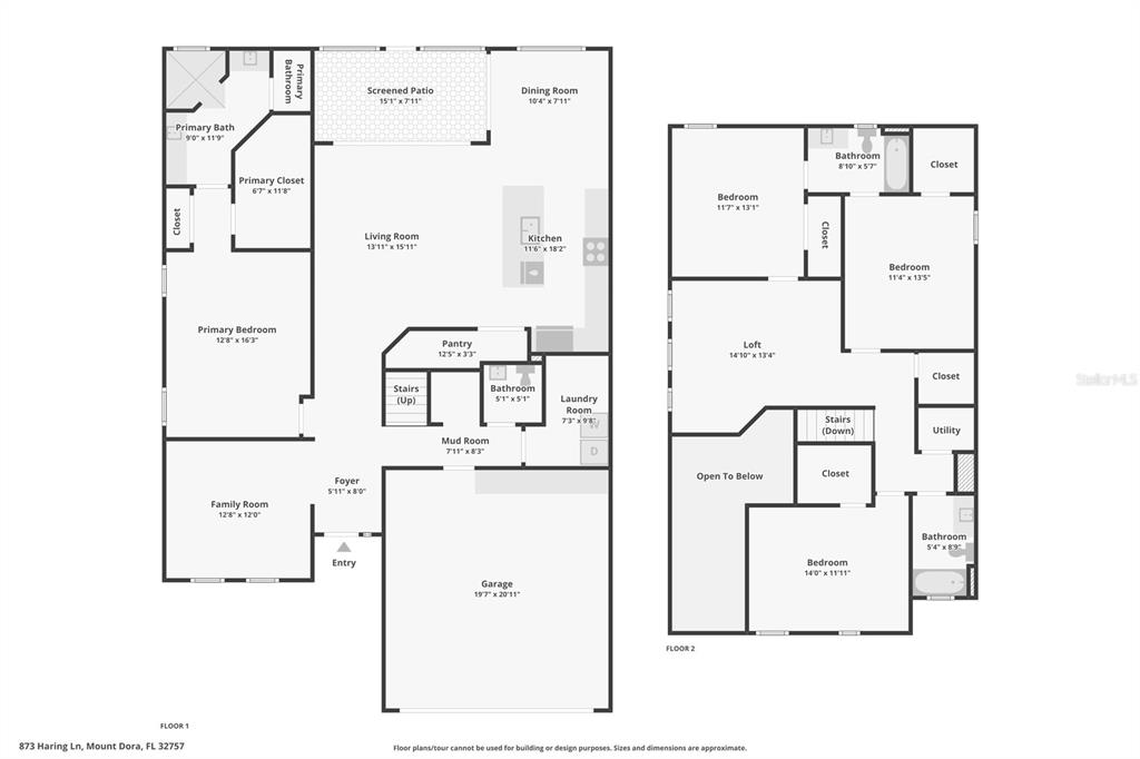
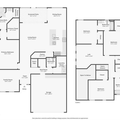
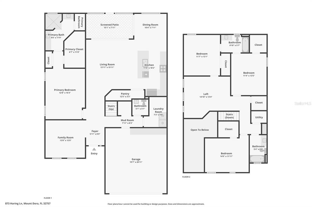
Square Feet
2654
Price Per Square Foot
$197.81
List Office Name
REAL BROKER, LLC
List Agent Full Name
Peter Luu
Subdivision Name
MOUNT DORA SUMMERBROOKE
Interior Information
Appliances
Dishwasher, Disposal, Electric Water Heater, Microwave, Range, Refrigerator, Tankless Water Heater
Bedrooms
4
Bathrooms
3
Bathrooms Full
3
Cooling
Central Air
Flooring
Carpet, Ceramic Tile
Heating
Central, Electric, Heat Pump
Interior Features
Built-in Features, Ceiling Fan(s), Eating Space In Kitchen, High Ceilings, Living Room/Dining Room Combo, Open Floorplan, Primary Bedroom Main Floor, Solid Wood Cabinets, Split Bedroom, Stone Counters, Thermostat, Tray Ceiling(s), Walk-In Closet(s), Window Treatments
Pet Restrictions
Verify with HOA.
Utilities
Public
Exterior Information
PropertySubType
Single Family Residence
Construction Materials
Block, Stucco
Exterior Features
Irrigation System, Private Mailbox, Sidewalk, Sliding Doors
Foundation Details
Slab
Lot Size Acres
0.14
Lot Size Square Feet
6227
Lot Features
City Lot, Level, Sidewalk
Roof
Shingle
Additional Information
Community Features
Clubhouse, Deed Restrictions, Dog Park, Pool
Country
US
County / Parish
Lake
Postal Code
32757
Street Name
HARING
Street Number
873
Street Suffix
LANE
Tax Year
2025
Total Acreage
0 to less than 1/4
Year Built
2013
Financial and Legal Information
Association Fee Frequency
Quarterly
Association Fee Requirement
Required
Association Fee
310
Flood Zone Code
X
Flood Zone Date
December 12, 2012
Flood Zone Panel
12069C0390E
List Price
$525000.00
Listing Contract Date
February 2, 2026
Monthly HOA Amount
103.33
Original List Price
525000
Parcel Number
281927040000001900
Pets Allowed
Yes
Special Listing Conditions
None
Tax Annual Amount
7509
Tax Book Number
58-1-10
Tax Lot
19
Zoning
PUD
Tax Legal Description
SUMMERBROOKE PHASE 1 PB 58 PG 1-10 LOT 19 ORB 4423 PG 499