8124 MABURY

Basic Information

List Status
Active
Property Type
Residential
Last Updated
MLS Listing Updated
Created
Address

8124 MABURY
ORLANDO, FL 32832
United States

Current Price
$710,000.00
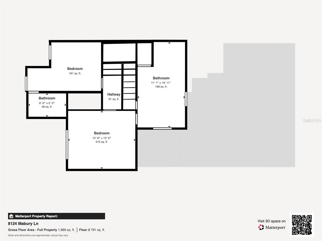
Square Feet
2175
Price Per Square Foot
$326.44
List Office Name
METROPOLITAN R.E SOLUTIONS INC
List Agent Full Name
Alejandra Silva
Subdivision Name
EAGLE CRK VLG I PH 2

Interior Information

Appliances
Dishwasher, Dryer, Microwave, Range, Refrigerator, Washer
Bedrooms
3
Bathrooms
3
Bathrooms Full
3
Cooling
Central Air
Flooring
Carpet, Ceramic Tile
Heating
Central
Interior Features
High Ceilings, Open Floorplan, Walk-In Closet(s)
Utilities
Cable Connected, Electricity Connected, Water Connected

Exterior Information

PropertySubType
Single Family Residence
Construction Materials
Block, Stucco
Exterior Features
Outdoor Kitchen
Foundation Details
Slab
Lot Size Acres
0.12
Lot Size Square Feet
5258
Roof
Tile

Additional Information

Country
US
County / Parish
Orange
Postal Code
32832
Street Name
MABURY
Street Number
8124
Street Suffix
LANE
Tax Year
2025
Total Acreage
0 to less than 1/4
Year Built
2023

Financial and Legal Information

Association Fee Frequency
Quarterly
Association Fee Requirement
Required
Association Fee
615
Cumulative Days On Market
7
Days On Market
7
Flood Zone Code
x
List Price
$710000.00
Listing Contract Date
March 3, 2026
Monthly HOA Amount
205
Original List Price
710000
Parcel Number
332431229902530
Pets Allowed
Cats OK, Dogs OK
Special Listing Conditions
Short Sale
Tax Annual Amount
9649.26
Tax Book Number
108 / 1
Tax Lot
253
Zoning
RES
Tax Legal Description
EAGLE CREEK VILLAGE I PHASE 2 108/1 LOT 253

Learn More About This Property

CAPTCHA
"