803 HARWOOD

Basic Information

List Status
Active
Property Type
Residential
Last Updated
MLS Listing Updated
Created
Address

803 HARWOOD
ORLANDO, FL 32803
United States

Current Price
$1,450,000.00
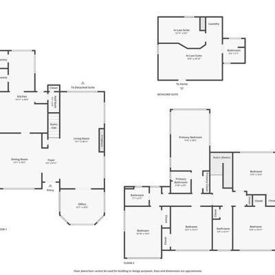
Square Feet
3217
Price Per Square Foot
$450.73
List Office Name
EXP REALTY LLC
List Agent Full Name
Andre Foster
Subdivision Name
NATHAN A REVISED SUB

Interior Information

Appliances
Dishwasher, Dryer, Electric Water Heater, Microwave, Range, Refrigerator, Washer
Bedrooms
6
Bathrooms
5
Bathrooms Full
4
Bathrooms Half
1
Cooling
Central Air
Flooring
Parquet, Tile, Hardwood
Heating
Central
Interior Features
Ceiling Fan(s), L Dining, PrimaryBedroom Upstairs, Stone Counters
Utilities
BB/HS Internet Available, Electricity Connected, Public, Sewer Connected, Street Lights, Water Connected

Exterior Information

PropertySubType
Single Family Residence
Construction Materials
Wood Frame, Wood Siding
Exterior Features
Garden, Private Mailbox, Rain Gutters, Sidewalk
Foundation Details
Basement
Lot Size Acres
0.23
Lot Size Square Feet
10348
Roof
Shingle

Additional Information

Country
US
County / Parish
Orange
Postal Code
32803
Street Name
HARWOOD
Street Number
803
Street Suffix
STREET
Tax Year
2024
Total Acreage
0 to less than 1/4
Year Built
1925

Financial and Legal Information

Cumulative Days On Market
110
Days On Market
110
Flood Zone Code
x
List Price
$1450000.00
Listing Contract Date
June 6, 2025
Original List Price
1300000
Parcel Number
252229588002190
Pets Allowed
Yes
Special Listing Conditions
None
Tax Annual Amount
4132
Tax Book Number
F-81
Tax Lot
19
Zoning
R-2B/T/HP
Tax Legal Description
NATHANS REVISED SUB F/81 LOT 19 & LOT 18 (LESS W 25.5 FT) BLK B

Learn More About This Property

CAPTCHA
"