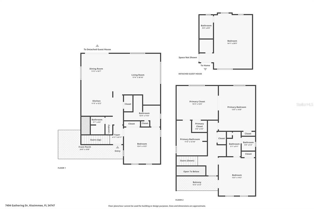
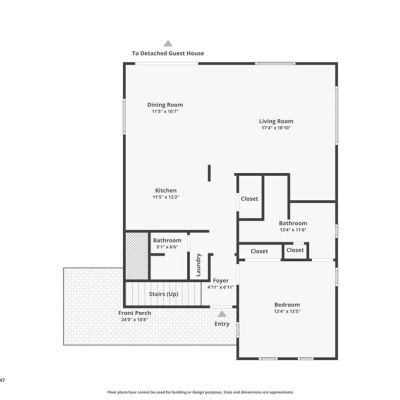
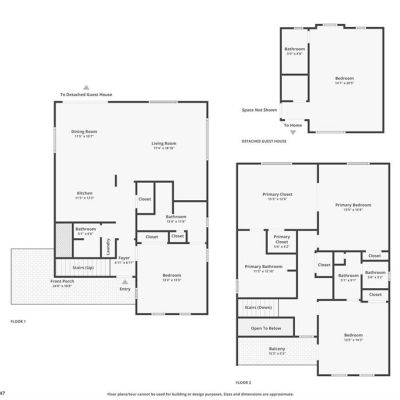
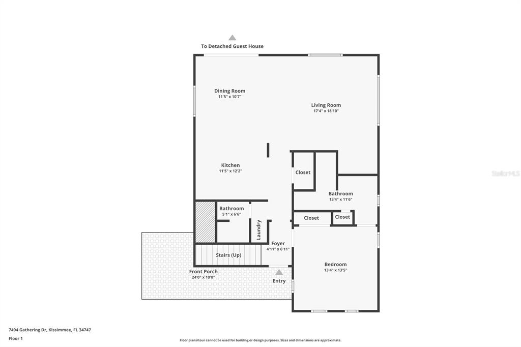
7494 GATHERING DRIVE
Basic Information
List Status
Active
Property Type
Residential
Address
7494 GATHERING DRIVE
REUNION, FL 34747
United States
Current Price
$744,900.00
Square Feet
2653
Price Per Square Foot
$280.78
List Office Name
EPIC FLORIDA REALTY LLC
List Agent Full Name
Harold Olson
Subdivision Name
REUNION PH 01 PRCL 01 UNIT 03
Interior Information
Appliances
Dishwasher, Disposal, Dryer, Gas Water Heater, Microwave, Range, Range Hood, Refrigerator, Washer
Bedrooms
4
Bathrooms
5
Bathrooms Full
4
Bathrooms Half
1
Cooling
Central Air
Flooring
Ceramic Tile, Laminate
Heating
Electric
Interior Features
Ceiling Fan(s), Kitchen/Family Room Combo, PrimaryBedroom Upstairs, Stone Counters, Walk-In Closet(s), Window Treatments
Max Pet Weight
999
Pet Restrictions
Please refer to HOA Guidelines for Pet Restrictions
Utilities
Cable Connected, Electricity Connected, Natural Gas Connected, Sewer Connected, Sprinkler Recycled, Water Connected
Exterior Information
PropertySubType
Single Family Residence
Construction Materials
Stucco
Exterior Features
Balcony, French Doors, Irrigation System, Sidewalk
Foundation Details
Block, Slab
Lot Size Acres
0.16
Lot Size Square Feet
6960
Lot Features
Corner Lot, Sidewalk
Roof
Shingle
Additional Information
Community Features
Clubhouse, Deed Restrictions, Dog Park, Fitness Center, Gated Community - Guard, Golf, Park, Pool, Restaurant, Sidewalks
Country
US
County / Parish
Osceola
Postal Code
34747
Street Name
GATHERING DRIVE
Street Number
7494
Tax Year
2025
Total Acreage
0 to less than 1/4
Year Built
2004
Financial and Legal Information
Association Fee Frequency
Monthly
Association Fee Includes
24-Hour Guard, Cable TV, Internet, Maintenance Structure, Pest Control, Security
Association Fee Requirement
Required
Association Fee
620
Cumulative Days On Market
37
Days On Market
37
Flood Zone Code
X
Flood Zone Date
June 6, 2013
Flood Zone Panel
12097C0040G
List Price
$744900.00
Listing Contract Date
March 3, 2026
Monthly HOA Amount
620
Original List Price
749900
Parcel Number
352527484900012880
Pets Allowed
Yes
Special Listing Conditions
None
Tax Annual Amount
9590
Tax Book Number
14-77-80
Tax Lot
2880
Zoning
PD
Tax Legal Description
REUNION PHASE 1 PARCEL 1 UNIT 3 PB 14 PGS 77-80 26-25-27 LOT 288