6892 SWAIN
Basic Information
List Status
Active
Property Type
Residential
Address
6892 SWAIN
SORRENTO, FL 32776
United States
Current Price
$1,250,000.00
Square Feet
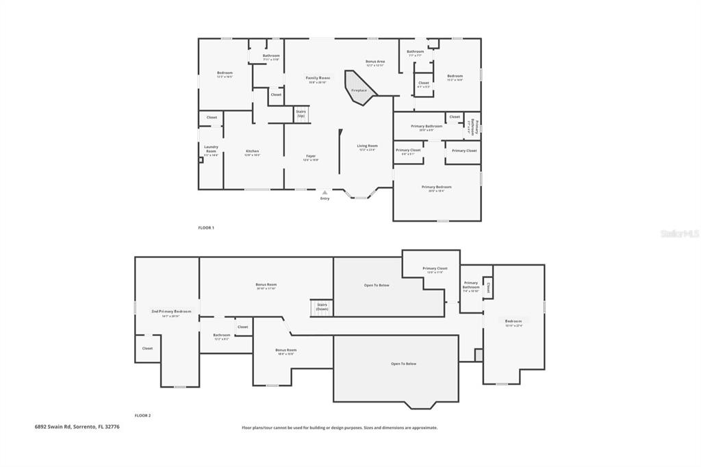
4067
Price Per Square Foot
$307.35
List Office Name
CENTURY 21 ALTON CLARK
List Agent Full Name
Ted Trawick
Subdivision Name
NONE
Interior Information
Appliances
Built-In Oven, Dishwasher, Electric Water Heater, Range, Refrigerator
Bedrooms
5
Bathrooms
6
Bathrooms Full
5
Bathrooms Half
1
Cooling
Central Air
Flooring
Carpet, Hardwood
Heating
Central, Electric, Heat Pump
Interior Features
Ceiling Fan(s), Eating Space In Kitchen, Primary Bedroom Main Floor, PrimaryBedroom Upstairs, Solid Wood Cabinets, Stone Counters, Thermostat, Vaulted Ceiling(s), Walk-In Closet(s)
Utilities
Electricity Connected, Water Connected
Exterior Information
PropertySubType
Single Family Residence
Construction Materials
Log
Exterior Features
None
Foundation Details
Pillar/Post/Pier
Lot Size Acres
6.11
Lot Size Square Feet
266338
Lot Features
In County, Level, Unincorporated, Zoned for Horses
Roof
Shingle
Additional Information
Country
US
County / Parish
Orange
Postal Code
32776
Street Name
SWAIN
Street Number
6892
Street Suffix
ROAD
Tax Year
2025
Total Acreage
5 to less than 10
Year Built
1995
Financial and Legal Information
Cumulative Days On Market
1
Days On Market
1
Flood Zone Code
X
List Price
$1250000.00
Listing Contract Date
December 12, 2025
Original List Price
1250000
Parcel Number
052028000000015
Special Listing Conditions
None
Tax Annual Amount
4962.12
Tax Book Number
9916/3920
Tax Lot
15
Zoning
ORG-A-1
Tax Legal Description
SW1/4 OF NE1/4 OF NW1/4 SEC 05-20-28 (LESS 315 FT) & BEG AT NE COR OF S 315 FT OF SW1/4 OF NE1/4 OF NW1/4 TH S 62.18 FTS 88 DEG W 663.67 FT N 4 DEG W 67.52 FTN 88 DEG E 663.96 FT TO POB (LESS N 30 FT RD)