626 ORCHID

Basic Information

List Status
Active
Property Type
Residential
Last Updated
MLS Listing Updated
Created
Address

626 ORCHID
ALTAMONTE SPRINGS, FL 32714
United States

Current Price
$494,888.00
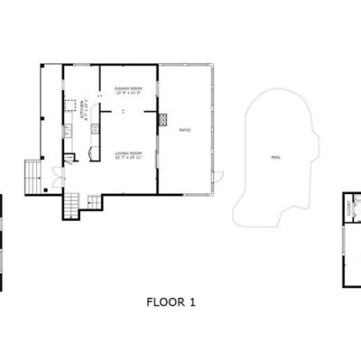
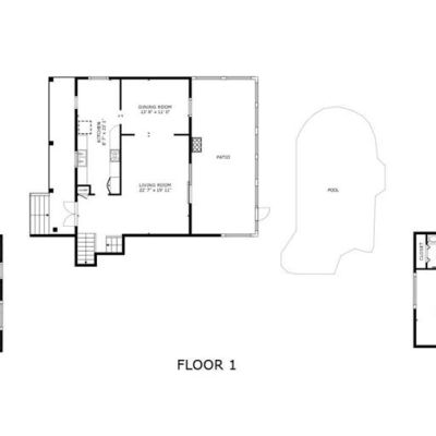
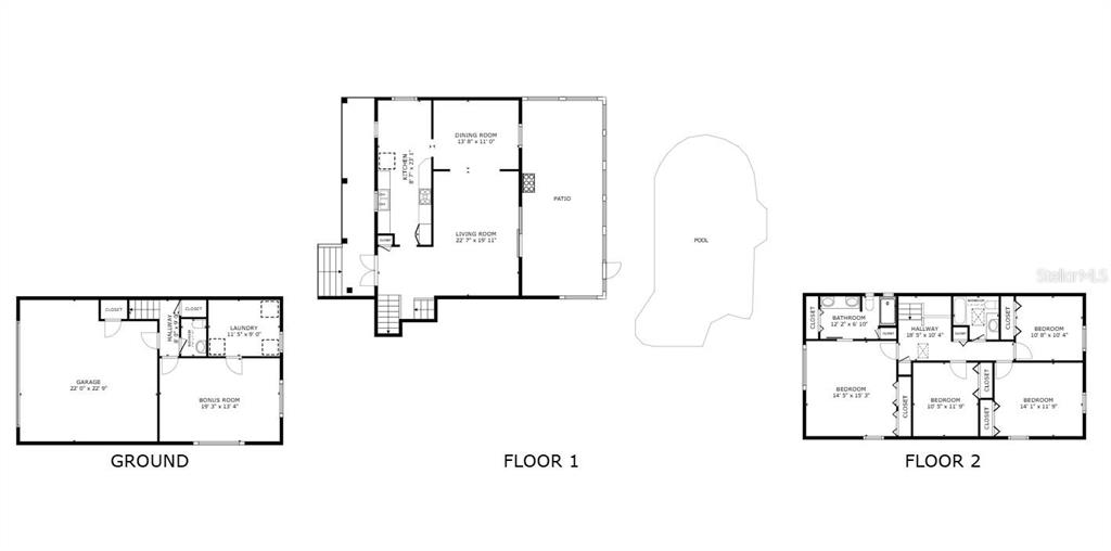
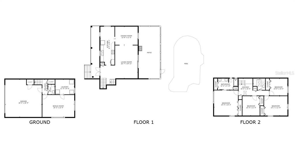
Square Feet
2400
Price Per Square Foot
$206.20
List Office Name
CHARLES RUTENBERG REALTY ORLANDO
List Agent Full Name
Deborah Elliott
Subdivision Name
SPRING OAKS

Interior Information

Appliances
Dishwasher, Disposal, Electric Water Heater, Microwave, Range, Refrigerator
Bedrooms
4
Bathrooms
3
Bathrooms Full
2
Bathrooms Half
1
Cooling
Central Air
Flooring
Carpet, Ceramic Tile
Heating
Central, Heat Pump
Interior Features
Ceiling Fan(s), Chair Rail, Eating Space In Kitchen, Primary Bedroom Main Floor, Skylight(s), Thermostat, Window Treatments
Utilities
BB/HS Internet Available, Cable Connected, Electricity Connected, Fiber Optics, Phone Available, Sewer Connected, Street Lights, Underground Utilities, Water Connected

Exterior Information

PropertySubType
Single Family Residence
Construction Materials
Block, Vinyl Siding
Exterior Features
Irrigation System, Lighting, Private Mailbox, Sidewalk, Sliding Doors
Foundation Details
Block, Slab
Lot Size Acres
0.20
Lot Size Square Feet
8741
Lot Features
Sidewalk
Roof
Shingle

Additional Information

Country
US
County / Parish
Seminole
Postal Code
32714
Street Name
ORCHID
Street Number
626
Street Suffix
LANE
Tax Year
2024
Total Acreage
0 to less than 1/4
Year Built
1973

Financial and Legal Information

Cumulative Days On Market
124
Days On Market
124
Flood Zone Code
X
Flood Zone Date
September 9, 2007
Flood Zone Panel
12117C0145F
List Price
$494888.00
Listing Contract Date
November 11, 2025
Original List Price
499000
Parcel Number
10212950300009070
Pets Allowed
Cats OK, Dogs OK
Special Listing Conditions
None
Tax Annual Amount
2376.38
Tax Book Number
17-95
Tax Lot
907
Zoning
R-1AA
Tax Legal Description
LOT 907 SPRING OAKS UNIT 4 PB 17 PG 95

Learn More About This Property

CAPTCHA
"