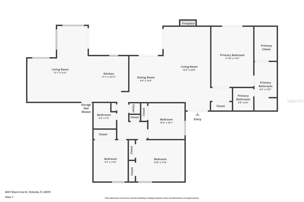
6047 SHORE LINE
Basic Information
List Status
Active
Property Type
Residential
Address
6047 SHORE LINE
ORLANDO, FL 32819
United States
Current Price
$707,000.00
Square Feet
2255
Price Per Square Foot
$313.53
List Office Name
KELLER WILLIAMS CLASSIC
List Agent Full Name
Valeria De Alvarenga Godofredo
Subdivision Name
ORANGE TREE COUNTRY CLUB
Interior Information
Appliances
Dishwasher, Disposal, Dryer, Microwave, Range, Refrigerator, Washer
Bedrooms
4
Bathrooms
2
Bathrooms Full
2
Cooling
Central Air
Flooring
Ceramic Tile, Laminate
Heating
Electric
Interior Features
Ceiling Fan(s), High Ceilings, Kitchen/Family Room Combo, Living Room/Dining Room Combo, Primary Bedroom Main Floor, Walk-In Closet(s)
Pet Restrictions
Verify restrictions w/HOA.
Utilities
BB/HS Internet Available, Electricity Connected, Sewer Connected, Street Lights, Water Connected
Exterior Information
PropertySubType
Single Family Residence
Construction Materials
Concrete, Stucco
Exterior Features
Garden, Sidewalk, Sliding Doors
Foundation Details
Slab
Lot Size Acres
0.35
Lot Size Square Feet
15094
Lot Features
Corner Lot, Sidewalk
Roof
Shingle
Additional Information
Community Features
Clubhouse, Dog Park, Fitness Center, Gated Community - Guard, Golf, Playground, Pool, Racquetball, Restaurant, Sidewalks, Tennis Court(s)
Country
US
County / Parish
Orange
Postal Code
32819
Street Name
SHORE LINE
Street Number
6047
Street Suffix
DRIVE
Tax Year
2024
Total Acreage
1/4 to less than 1/2
Year Built
1989
Financial and Legal Information
Association Fee Frequency
Quarterly
Association Fee Includes
24-Hour Guard, Community Pool, Escrow Reserves Fund, Maintenance Grounds, Maintenance Repairs, Manager, Pool Maintenance, Recreational Facilities, Sewer, Water
Association Fee Requirement
Required
Association Fee
539
Cumulative Days On Market
161
Days On Market
161
Flood Zone Code
X
Flood Zone Date
September 9, 2009
Flood Zone Panel
12095C0405F
List Price
$707000.00
Listing Contract Date
October 10, 2025
Monthly HOA Amount
179.67
Original List Price
717000
Parcel Number
232328630000390
Pets Allowed
Yes
Special Listing Conditions
None
Tax Annual Amount
8160.64
Tax Book Number
22-145
Tax Lot
39
Zoning
P-D
Tax Legal Description
ORANGE TREE COUNTRY CLUB UT 6 22/145 LOT39