539 WATERFERN TRAIL
Basic Information
List Status
Active
Property Type
Residential
Address
539 WATERFERN TRAIL
AUBURNDALE, FL 33823
United States
Current Price
$699,900.00
Square Feet
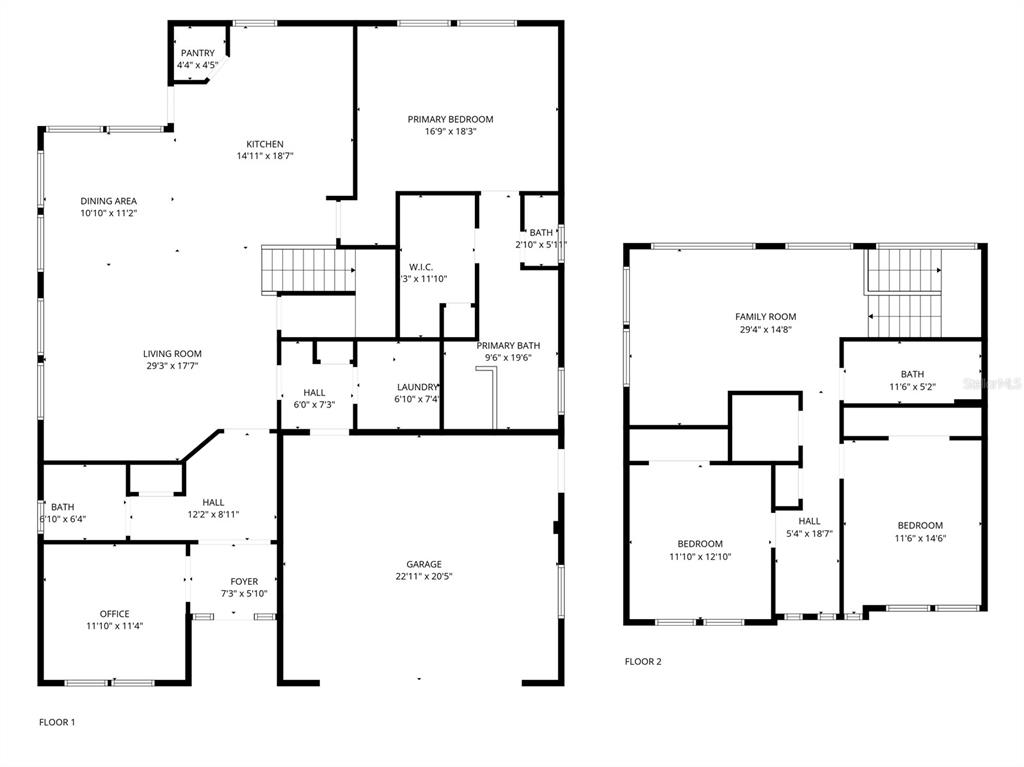
2911
Price Per Square Foot
$240.43
List Office Name
XCELLENCE REALTY, INC
List Agent Full Name
Gary Franz
Subdivision Name
WATER RIDGE SUB
Interior Information
Appliances
Dishwasher, Electric Water Heater, Microwave, Range, Refrigerator
Bedrooms
3
Bathrooms
3
Bathrooms Full
2
Bathrooms Half
1
Cooling
Central Air
Flooring
Carpet, Tile, Hardwood
Heating
Central, Electric, Heat Pump
Interior Features
Ceiling Fan(s), Crown Molding, Eating Space In Kitchen, Kitchen/Family Room Combo, Primary Bedroom Main Floor, Solid Surface Counters, Solid Wood Cabinets, Thermostat, Walk-In Closet(s), Window Treatments
Pet Restrictions
Verify pet restrictions with HOA.
Utilities
BB/HS Internet Available, Cable Connected, Electricity Connected
Exterior Information
PropertySubType
Single Family Residence
Construction Materials
Block, Stucco
Exterior Features
Irrigation System, Sidewalk, Sprinkler Metered
Foundation Details
Slab
Lot Size Acres
0.20
Lot Size Square Feet
8869
Roof
Shingle
Additional Information
Community Features
Community Boat Ramp, Fishing, Lake, Water Access, Waterfront, Clubhouse, Deed Restrictions, Fitness Center, Gated Community - No Guard, Golf Carts OK, Pool, Sidewalks, Tennis Court(s)
Country
US
County / Parish
Polk
Postal Code
33823
Street Name
WATERFERN TRAIL
Street Number
539
Street Suffix
DRIVE
Tax Year
2024
Total Acreage
0 to less than 1/4
Year Built
2018
Financial and Legal Information
Association Fee Frequency
Semi-Annually
Association Fee Includes
Community Pool, Escrow Reserves Fund, Manager, Recreational Facilities
Association Fee Requirement
Required
Association Fee
1010
Cumulative Days On Market
72
Days On Market
72
Flood Zone Code
X
Flood Zone Date
December 12, 2016
Flood Zone Panel
12105C0335G
List Price
$699900.00
Listing Contract Date
September 9, 2025
Monthly HOA Amount
168.33
Original List Price
724900
Parcel Number
252736305501000530
Pets Allowed
Yes
Special Listing Conditions
None
Tax Annual Amount
5118
Tax Book Number
133-24 THRU 35
Tax Lot
53
Tax Legal Description
WATER RIDGE SUBDIVISION PB 133 PGS 24 THRU 35 LOT 53