5127 GLASGOW

Basic Information

List Status
Active
Property Type
Residential
Last Updated
MLS Listing Updated
Created
Address

5127 GLASGOW
ORLANDO, FL 32819
United States

Current Price
$435,000.00
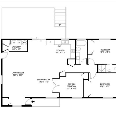
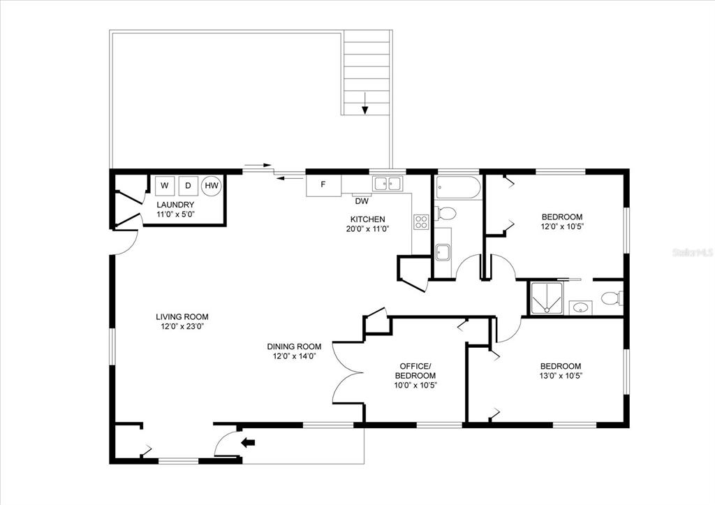
Square Feet
1426
Price Per Square Foot
$305.05
List Office Name
CHARLES RUTENBERG REALTY ORLANDO
List Agent Full Name
Angela Sanchez
Subdivision Name
LAKE MARSHA HIGHLANDS FIRST ADD

Interior Information

Appliances
Dishwasher, Dryer, Microwave, Range, Refrigerator, Washer
Bedrooms
3
Bathrooms
2
Bathrooms Full
2
Cooling
Central Air
Flooring
Vinyl
Heating
Central
Interior Features
Ceiling Fan(s)
Utilities
Cable Available, Electricity Available, Water Available

Exterior Information

PropertySubType
Single Family Residence
Construction Materials
Block
Exterior Features
Balcony, Fire Pit, French Doors, Lighting
Foundation Details
Slab
Lot Size Acres
0.35
Lot Size Square Feet
15396
Roof
Shingle

Additional Information

Country
US
County / Parish
Orange
Postal Code
32819
Street Name
GLASGOW
Street Number
5127
Street Suffix
AVENUE
Tax Year
2024
Total Acreage
1/4 to less than 1/2
Year Built
1971

Financial and Legal Information

Cumulative Days On Market
83
Days On Market
83
Flood Zone Code
X*
Flood Zone Date
September 9, 2009
Flood Zone Panel
12095C0405F
List Price
$435000.00
Listing Contract Date
January 1, 2026
Original List Price
449000
Parcel Number
142328465500330
Special Listing Conditions
None
Tax Annual Amount
6519.08
Tax Book Number
Y-82
Tax Lot
33
Zoning
R-1A
Tax Legal Description
LAKE MARSHA HIGHLANDS FIRST ADD Y/82 LOT33

Learn More About This Property

CAPTCHA
"