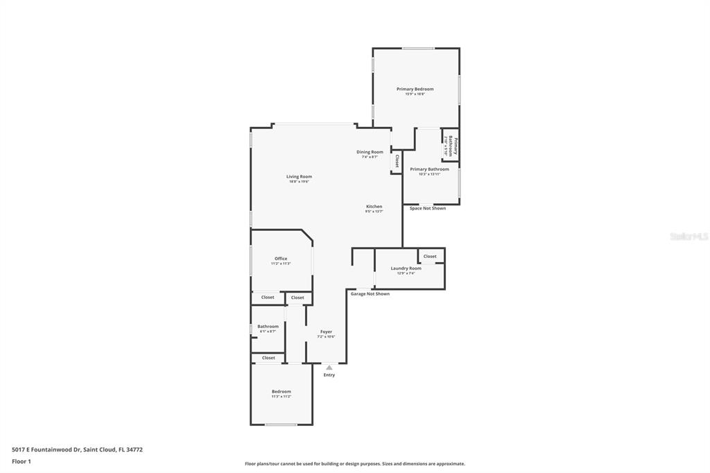
5017 FOUNTAINWOOD

Basic Information

List Status
Active
Property Type
Residential
Last Updated
MLS Listing Updated
Created
Address

5017 FOUNTAINWOOD
ST CLOUD, FL 34772
United States

Current Price
$425,000.00
Square Feet
1863
Price Per Square Foot
$228.13
List Office Name
KELLER WILLIAMS ADVANTAGE 2 REALTY
List Agent Full Name
Sean Burke
Subdivision Name
TWIN LAKES PH 1

Interior Information

Appliances
Dishwasher, Disposal, Dryer, Range, Refrigerator, Washer, Wine Refrigerator
Bedrooms
3
Bathrooms
2
Bathrooms Full
2
Cooling
Central Air
Flooring
Carpet, Tile
Heating
Central
Interior Features
Living Room/Dining Room Combo, Solid Surface Counters
Pet Restrictions
Buyer to verify all restrictions.
Utilities
BB/HS Internet Available, Cable Connected, Electricity Connected, Natural Gas Connected, Sewer Connected, Water Connected

Exterior Information

PropertySubType
Single Family Residence
Construction Materials
Block
Exterior Features
Awning(s)
Foundation Details
Slab
Lot Size Acres
0.18
Lot Size Square Feet
7841
Roof
Shingle

Additional Information

Community Features
Dock, Lake, Water Access, Clubhouse, Community Mailbox, Deed Restrictions, Dog Park, Fitness Center, Gated Community - No Guard, Golf Carts OK, Park, Pool, Racquetball, Restaurant, Sidewalks, Tennis Court(s)
Country
US
County / Parish
Osceola
Postal Code
34772
Street Name
FOUNTAINWOOD
Street Number
5017
Street Suffix
DRIVE
Tax Year
2024
Total Acreage
0 to less than 1/4
Year Built
2018

Financial and Legal Information

Association Fee Frequency
Monthly
Association Fee Requirement
Required
Association Fee
335
Cumulative Days On Market
135
Days On Market
135
Flood Zone Code
x
List Price
$425000.00
Listing Contract Date
July 7, 2025
Monthly HOA Amount
335
Original List Price
435000
Parcel Number
172631526100010460
Pets Allowed
Breed Restrictions
Special Listing Conditions
None
Tax Annual Amount
5438.64
Tax Book Number
24-172-178
Tax Lot
46
Zoning
RES
Tax Legal Description
TWIN LAKES PH 1 PB 24 PGS 172-178 LOT 46

Learn More About This Property

CAPTCHA
"