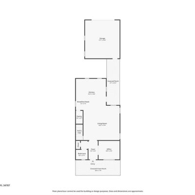
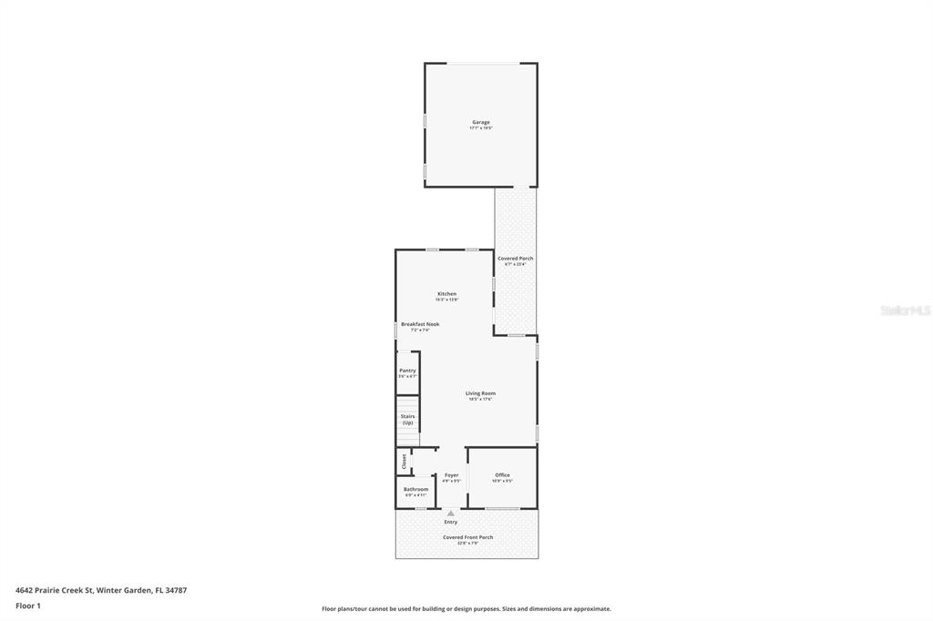
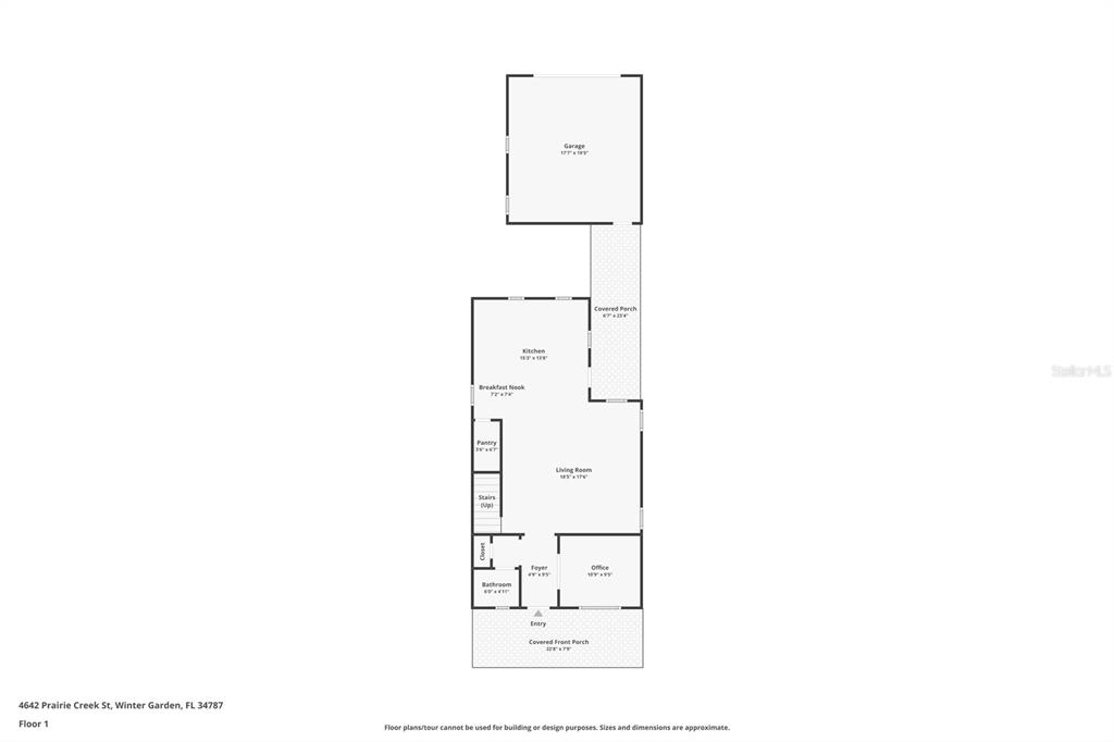
4642 PRAIRIE CREEK

Basic Information

List Status
Active
Property Type
Residential
Last Updated
MLS Listing Updated
Created
Address

4642 PRAIRIE CREEK
WINTER GARDEN, FL 34787
United States

Current Price
$599,900.00
Square Feet
2149
Price Per Square Foot
$279.15
List Office Name
KELLER WILLIAMS ADVANTAGE III
List Agent Full Name
Shanta Navarro
Subdivision Name
ENCLAVE AT HAMLIN

Interior Information

Appliances
Cooktop, Dishwasher, Refrigerator
Bedrooms
4
Bathrooms
3
Bathrooms Full
2
Bathrooms Half
1
Cooling
Central Air
Flooring
Laminate
Heating
Central
Interior Features
Ceiling Fan(s), Crown Molding, Kitchen/Family Room Combo, Living Room/Dining Room Combo, PrimaryBedroom Upstairs
Pet Restrictions
Buyer to confirm pet restrictions with county and HOA.
Utilities
Public

Exterior Information

PropertySubType
Single Family Residence
Construction Materials
Block, Stucco
Exterior Features
Awning(s)
Foundation Details
Slab
Lot Size Acres
0.18
Lot Size Square Feet
6100
Roof
Shingle

Additional Information

Community Features
Playground, Pool
Country
US
County / Parish
Orange
Postal Code
34787
Street Name
PRAIRIE CREEK
Street Number
4642
Street Suffix
STREET
Tax Year
2024
Total Acreage
0 to less than 1/4
Year Built
2021

Financial and Legal Information

Association Fee Frequency
Quarterly
Association Fee Includes
Maintenance Grounds
Association Fee Requirement
Required
Association Fee
842.34
Cumulative Days On Market
1
Days On Market
1
Flood Zone Code
X
List Price
$599900.00
Listing Contract Date
March 3, 2026
Monthly HOA Amount
280.78
Original List Price
599900
Parcel Number
172327161300580
Pets Allowed
Yes
Special Listing Conditions
None
Tax Annual Amount
6500
Tax Book Number
54
Tax Lot
58
Zoning
RESI
Tax Legal Description
Lot 58

Learn More About This Property

CAPTCHA
"