4410 MILDRED BASS

Basic Information

List Status
Active
Property Type
Residential
Last Updated
MLS Listing Updated
Created
Address

4410 MILDRED BASS
ST CLOUD, FL 34772
United States

Current Price
$1,100,000.00
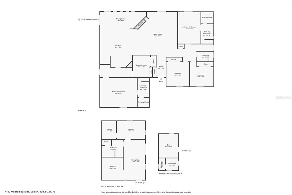
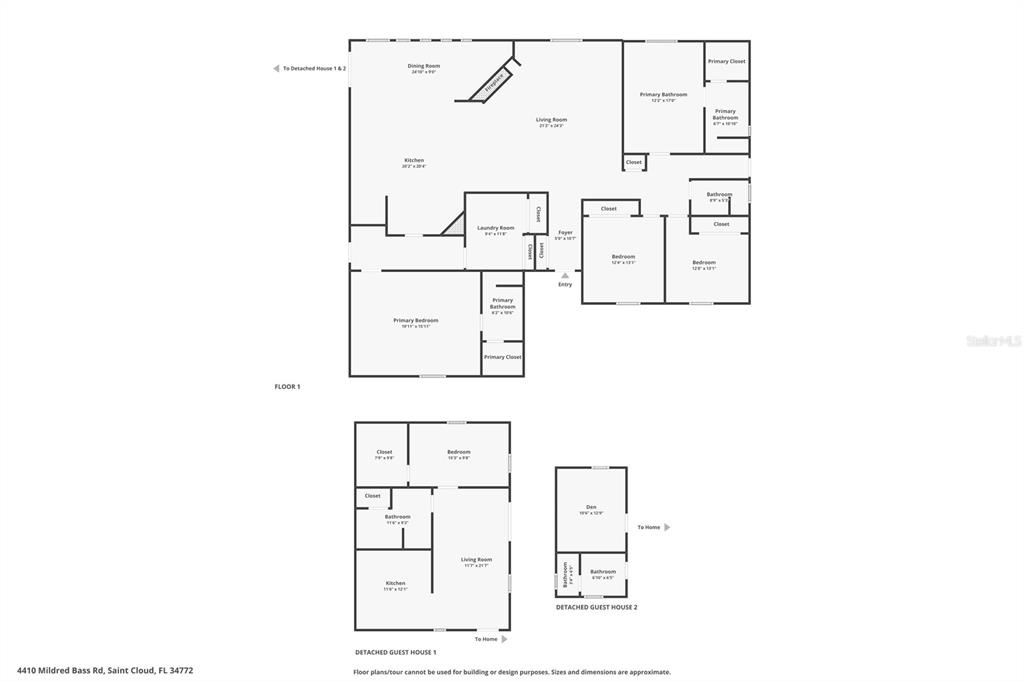
Square Feet
3569
Price Per Square Foot
$308.21
List Office Name
EXP REALTY LLC
List Agent Full Name
Jamie Bollinger
Subdivision Name
S L & I C

Interior Information

Appliances
Microwave, Range, Refrigerator, Water Softener
Bedrooms
6
Bathrooms
6
Bathrooms Full
5
Bathrooms Half
1
Cooling
Central Air
Flooring
Luxury Vinyl
Heating
Central
Interior Features
Ceiling Fan(s), Eating Space In Kitchen, Open Floorplan, Solid Wood Cabinets, Stone Counters, Walk-In Closet(s)
Utilities
Cable Available, Electricity Connected, Phone Available, Sewer Connected, Water Connected

Exterior Information

PropertySubType
Single Family Residence
Construction Materials
Block
Exterior Features
Other, Private Entrance, Private Mailbox, Rain Gutters, Storage
Foundation Details
Slab
Lot Size Acres
5.46
Lot Size Square Feet
237838
Roof
Shingle

Additional Information

Country
US
County / Parish
Osceola
Postal Code
34772
Street Name
MILDRED BASS
Street Number
4410
Street Suffix
ROAD
Tax Year
2024
Total Acreage
5 to less than 10
Year Built
1989

Financial and Legal Information

Cumulative Days On Market
1
Days On Market
1
Flood Zone Code
X
Flood Zone Date
June 6, 2013
Flood Zone Panel
12097C0270G
List Price
$1100000.00
Listing Contract Date
December 12, 2025
Original List Price
1100000
Parcel Number
122730495000010025
Special Listing Conditions
None
Tax Annual Amount
11462.11
Tax Book Number
B-37
Tax Lot
2
Zoning
OAC
Tax Legal Description
S L & I C PB B PG 37 LOTS 2 & 15 LESS E 272 FT

Learn More About This Property

CAPTCHA
"