429 ORISTA
Basic Information
List Status
Active
Property Type
Residential
Address
429 ORISTA
DAVENPORT, FL 33897
United States
Current Price
$399,999.00
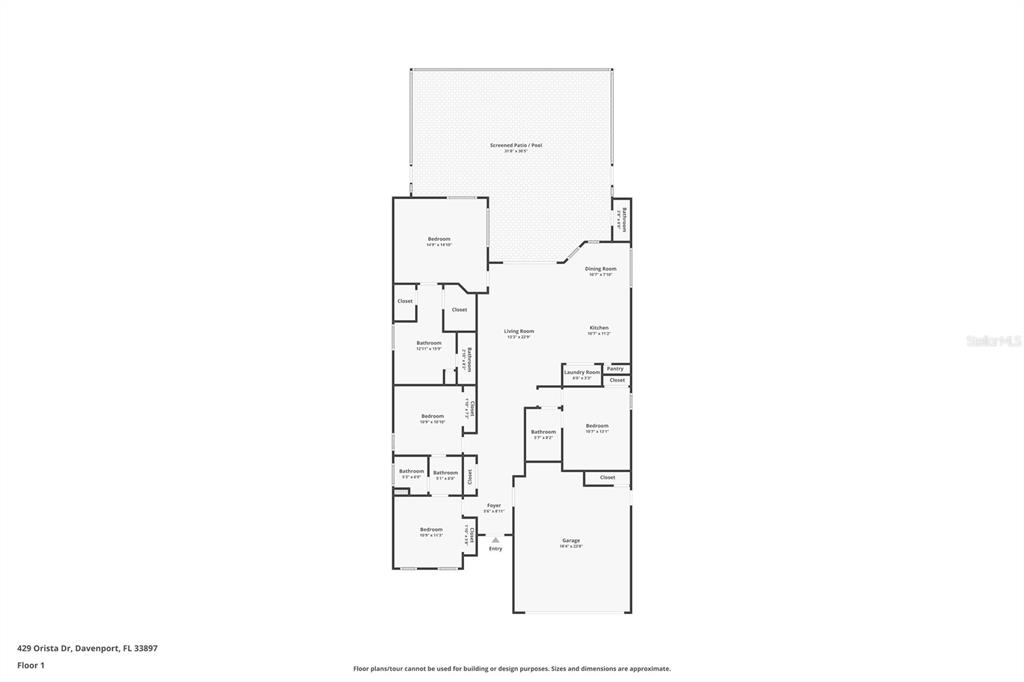
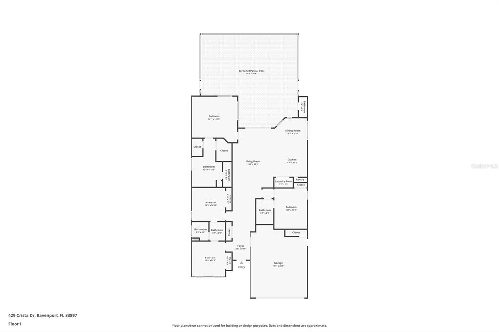
Square Feet
1923
Price Per Square Foot
$208.01
List Office Name
TEAM DONOVAN
List Agent Full Name
James Donovan
Subdivision Name
CALABAY PARC
Interior Information
Appliances
Dishwasher, Dryer, Microwave, Range, Refrigerator, Washer
Bedrooms
4
Bathrooms
4
Bathrooms Full
3
Bathrooms Half
1
Cooling
Central Air
Flooring
Tile
Heating
Central, Electric
Interior Features
Ceiling Fan(s)
Utilities
BB/HS Internet Available, Cable Available, Electricity Available, Phone Available, Public, Water Available
Exterior Information
PropertySubType
Single Family Residence
Construction Materials
Stucco
Exterior Features
None
Foundation Details
Slab
Lot Size Acres
0.13
Lot Size Square Feet
5502
Roof
Shingle
Additional Information
Country
US
County / Parish
Polk
Postal Code
33897
Street Name
ORISTA
Street Number
429
Street Suffix
DRIVE
Tax Year
2024
Total Acreage
0 to less than 1/4
Year Built
2002
Financial and Legal Information
Association Fee Frequency
Quarterly
Association Fee Includes
Maintenance Grounds, Other, Trash
Association Fee Requirement
Required
Association Fee
478
Cumulative Days On Market
132
Days On Market
132
Flood Zone Code
X
Flood Zone Date
December 12, 2016
Flood Zone Panel
12105C0100G
List Price
$399999.00
Listing Contract Date
October 10, 2025
Monthly HOA Amount
159.33
Number Of Pets
2
Original List Price
419000
Parcel Number
262525999992000510
Pets Allowed
Cats OK, Dogs OK, Number Limit, Yes
Special Listing Conditions
None
Tax Annual Amount
4441.95
Tax Book Number
113-26
Tax Lot
51
Tax Legal Description
CALABAY PARC-UNIT ONE PB 113 PGS 26 & 27 LOT 51