3998 BANNOCK

Basic Information

List Status
Active
Property Type
Residential
Last Updated
MLS Listing Updated
Created
Address

3998 BANNOCK
TAVARES, FL 32778
United States

Current Price
$385,000.00
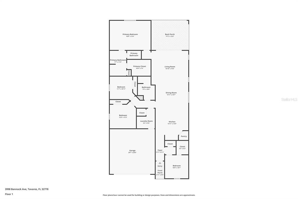
Square Feet
1910
Price Per Square Foot
$201.57
List Office Name
WHEATLEY REALTY GROUP
List Agent Full Name
Matthew Wheatley
Subdivision Name
SEASONS AT LAKESIDE FOREST

Interior Information

Appliances
Dishwasher, Dryer, Microwave, Range, Refrigerator, Washer
Bedrooms
4
Bathrooms
2
Bathrooms Full
2
Cooling
Central Air
Flooring
Carpet, Ceramic Tile
Heating
Central, Electric
Interior Features
Eating Space In Kitchen, High Ceilings, Kitchen/Family Room Combo, Open Floorplan, Primary Bedroom Main Floor, Solid Surface Counters, Thermostat, Walk-In Closet(s)
Pet Restrictions
Buyer/buyer's agent to verify pet restrictions with city and HOA.
Utilities
BB/HS Internet Available, Cable Available, Electricity Connected, Phone Available, Sewer Connected, Water Connected

Exterior Information

PropertySubType
Single Family Residence
Construction Materials
Block, Stucco
Exterior Features
Irrigation System, Sliding Doors
Foundation Details
Block, Slab
Lot Size Acres
0.14
Lot Size Square Feet
5506
Roof
Shingle

Additional Information

Community Features
Dock
Country
US
County / Parish
Lake
Postal Code
32778
Street Name
BANNOCK
Street Number
3998
Street Suffix
AVENUE
Tax Year
2025
Total Acreage
0 to less than 1/4
Year Built
2024

Financial and Legal Information

Association Fee Frequency
Annually
Association Fee Requirement
Required
Association Fee
840
Cumulative Days On Market
1
Days On Market
1
Flood Zone Code
X
Flood Zone Date
December 12, 2012
List Price
$385000.00
Listing Contract Date
February 2, 2026
Monthly HOA Amount
70
Original List Price
385000
Parcel Number
122025001000012900
Pets Allowed
Yes
Special Listing Conditions
None
Tax Annual Amount
6480.62
Tax Book Number
80/22-27
Tax Lot
12900
Zoning
RES
Tax Legal Description
SEASONS AT LAKESIDE FOREST PB 80 PG 22-27 LOT 129

Learn More About This Property

CAPTCHA
"