37048 COUNTY ROAD 452

Basic Information

List Status
Active
Property Type
Residential
Last Updated
MLS Listing Updated
Created
Address

37048 COUNTY ROAD 452
GRAND ISLAND, FL 32735
United States

Current Price
$875,000.00
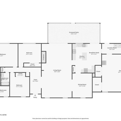
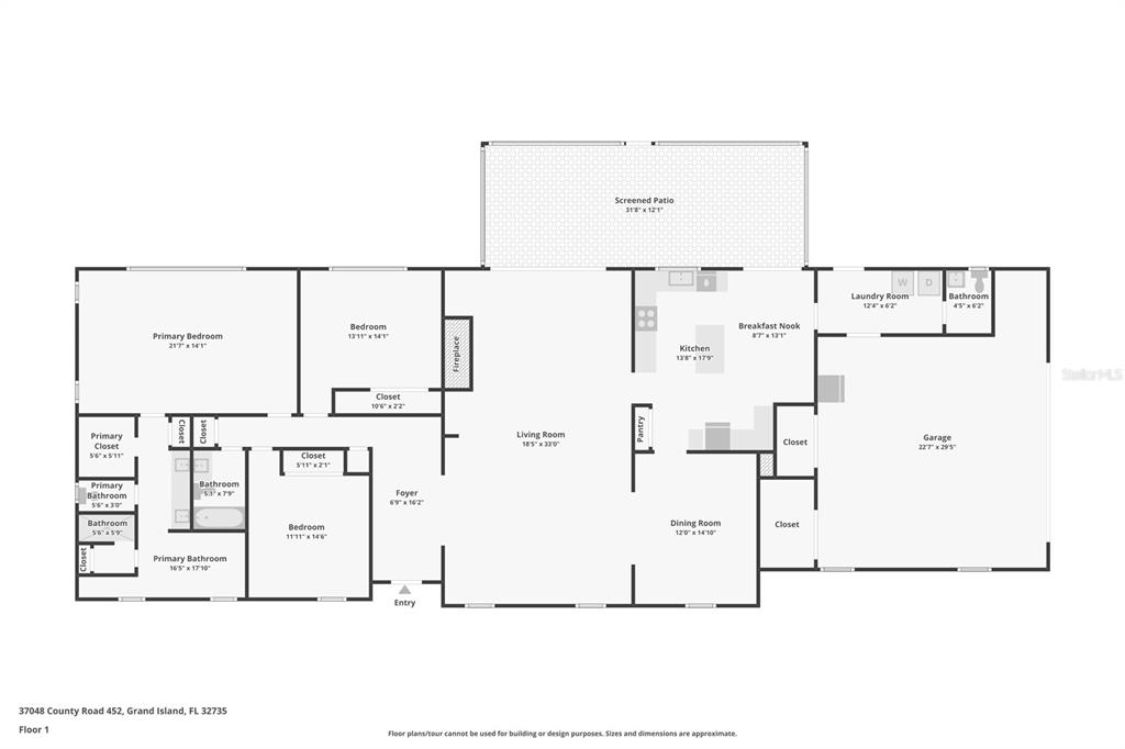
Square Feet
2375
Price Per Square Foot
$368.42
List Office Name
COLDWELL BANKER VANGUARD EDGE
List Agent Full Name
Debbie Muma
Subdivision Name
N/A

Interior Information

Appliances
Dishwasher, Electric Water Heater, Microwave, Range, Refrigerator
Bedrooms
3
Bathrooms
3
Bathrooms Full
2
Bathrooms Half
1
Cooling
Central Air
Flooring
Ceramic Tile, Parquet
Heating
Central, Electric
Interior Features
Built-in Features, Cathedral Ceiling(s), Eating Space In Kitchen, High Ceilings, Primary Bedroom Main Floor, Solid Surface Counters, Walk-In Closet(s)
Utilities
Cable Connected, Electricity Connected

Exterior Information

PropertySubType
Single Family Residence
Construction Materials
Block
Exterior Features
Sidewalk, Sliding Doors, Storage
Foundation Details
Slab
Lot Size Acres
3.29
Lot Size Square Feet
143878
Roof
Slate

Additional Information

Country
US
County / Parish
Lake
Postal Code
32735
Street Name
COUNTY ROAD 452
Street Number
37048
Tax Year
2025
Total Acreage
2 to less than 5
Year Built
1973

Financial and Legal Information

Flood Zone Code
X
Flood Zone Date
December 12, 2012
Flood Zone Panel
12069C0215E
List Price
$875000.00
Listing Contract Date
January 1, 2026
Original List Price
875000
Parcel Number
281826000300000800
Special Listing Conditions
None
Tax Annual Amount
3038.21
Tax Book Number
2102 432
Tax Lot
7
Zoning
R-3
Tax Legal Description
FROM SW COR OF GOV LOT 7 RUN N TO S'LY R/W OF SR-452 E 604.5 FT S 1DEG 40MIN W 252 FT E 150.5 FT S 1DEG 50MIN W 206 FT TO R/W SR-452 S 35DEG 16MIN 30SEC E ALONG N'LY R/W LINE 209.3 FT FOR POB RUN N TO LAKE BEG AGAIN AT POB & RUN S 35DEG 16MIN 30SEC E ALONG R/W 344.67 FT N 2DEG E TO LAKE NW'LY ALONG LAKE TO INTERSECT FIRST LINE ORB 6143 PG 1523

Learn More About This Property

CAPTCHA
"