360 LAKE SEMINARY

Basic Information

List Status
Active
Property Type
Residential
Last Updated
MLS Listing Updated
Created
Address

360 LAKE SEMINARY
MAITLAND, FL 32751
United States

Current Price
$4,999,000.00
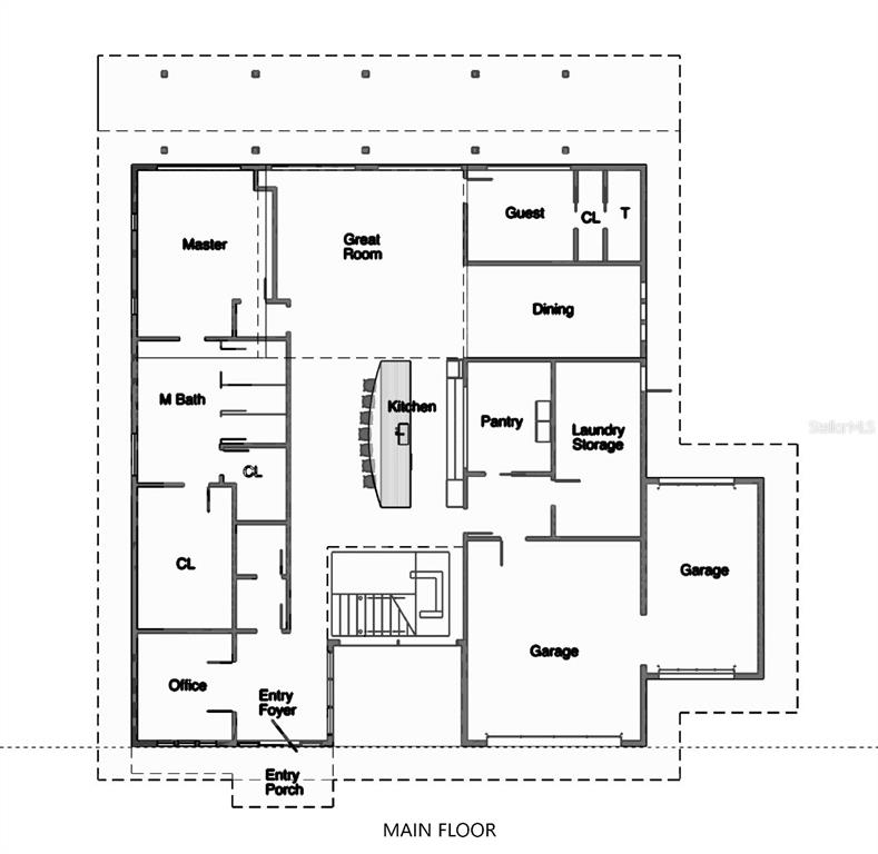
Square Feet
6466
Price Per Square Foot
$773.12
List Office Name
PREMIER SOTHEBYS INT'L REALTY
List Agent Full Name
Mel Bernstein
Subdivision Name
FLORIDAHAVEN

Interior Information

Appliances
Bar Fridge, Built-In Oven, Convection Oven, Cooktop, Dishwasher, Disposal, Exhaust Fan, Freezer, Microwave, Refrigerator, Tankless Water Heater
Bedrooms
5
Bathrooms
8
Bathrooms Full
6
Bathrooms Half
2
Cooling
Central Air, Humidity Control, Zoned
Flooring
Tile, Hardwood
Heating
Central, Heat Pump, Zoned
Interior Features
Built-in Features, Ceiling Fan(s), Eating Space In Kitchen, High Ceilings, Kitchen/Family Room Combo, Open Floorplan, Primary Bedroom Main Floor, Solid Wood Cabinets, Split Bedroom, Stone Counters, Thermostat, Walk-In Closet(s), Wet Bar
Pet Restrictions
Per municipal rules and regulations. Buyer to verify.
Utilities
BB/HS Internet Available, Cable Available, Phone Available

Exterior Information

PropertySubType
Single Family Residence
Construction Materials
Block, Stucco, Wood Frame
Exterior Features
Irrigation System, Outdoor Kitchen, Sliding Doors
Foundation Details
Stem Wall
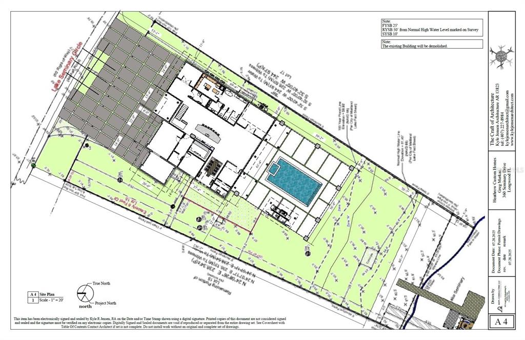
Lot Size Acres
0.69
Lot Size Square Feet
29878
Lot Features
Cleared
Roof
Membrane

Additional Information

Country
US
County / Parish
Seminole
Postal Code
32751
Street Name
LAKE SEMINARY
Street Number
360
Street Suffix
CIRCLE
Tax Year
2024
Total Acreage
1/2 to less than 1
Year Built
2026

Financial and Legal Information

Cumulative Days On Market
144
Days On Market
144
Flood Zone Code
AE/X
Flood Zone Date
September 9, 2007
Flood Zone Panel
12117C0165F
List Price
$4999000.00
Listing Contract Date
November 11, 2025
Original List Price
4999000
Parcel Number
2421295BX0000015A
Pets Allowed
Yes
Special Listing Conditions
None
Tax Annual Amount
3536.02
Tax Book Number
9-17
Tax Lot
15
Zoning
R-1AA
Tax Legal Description
ELY 8 FT OF LOT 15 + ALL LOT 16 FLORIDAHAVEN PB 9 PG 17

Learn More About This Property

CAPTCHA
"

Heading replace