35350 COUNTY ROAD 439
Basic Information
List Status
Active
Property Type
Residential
Address
35350 COUNTY ROAD 439
EUSTIS, FL 32736
United States
Current Price
$875,000.00
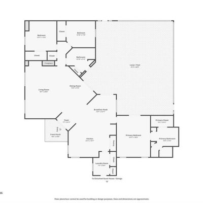
Square Feet
3196
Price Per Square Foot
$273.78
List Office Name
GALLERY 54 REALTY LLC
List Agent Full Name
Michael Kane
Subdivision Name
NA
Interior Information
Appliances
Dishwasher, Electric Water Heater, Range, Refrigerator
Bedrooms
3
Bathrooms
3
Bathrooms Full
2
Bathrooms Half
1
Cooling
Central Air
Flooring
Tile
Heating
Central
Interior Features
Cathedral Ceiling(s), Ceiling Fan(s), Open Floorplan, Split Bedroom, Thermostat, Walk-In Closet(s), Window Treatments
Utilities
BB/HS Internet Available, Cable Connected, Electricity Connected, Underground Utilities
Exterior Information
PropertySubType
Single Family Residence
Construction Materials
Block
Exterior Features
French Doors, Irrigation System, Lighting, RV Hookup
Foundation Details
Slab
Lot Size Acres
2.31
Lot Size Square Feet
100624
Lot Features
Landscaped, Zoned for Horses
Roof
Shingle
Additional Information
Country
US
County / Parish
Lake
Postal Code
32736
Street Name
COUNTY ROAD 439
Street Number
35350
Tax Year
2025
Total Acreage
2 to less than 5
Year Built
1996
Financial and Legal Information
Cumulative Days On Market
19
Days On Market
19
Flood Zone Code
X
Flood Zone Date
December 12, 2012
Flood Zone Panel
12069C0380E
List Price
$875000.00
Listing Contract Date
January 1, 2026
Original List Price
875000
Parcel Number
031927000400009000
Special Listing Conditions
None
Tax Annual Amount
4435
Tax Book Number
2444/1850
Tax Lot
09000
Zoning
A
Tax Legal Description
NW 1/4 OF SW 1/4 OF NW 1/4 OF SE 1/4--LESS CR 439-- ORB 2444 PG 1850