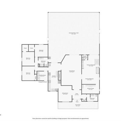
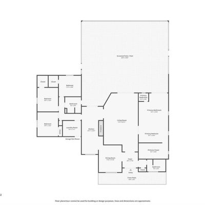
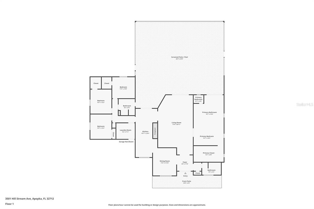
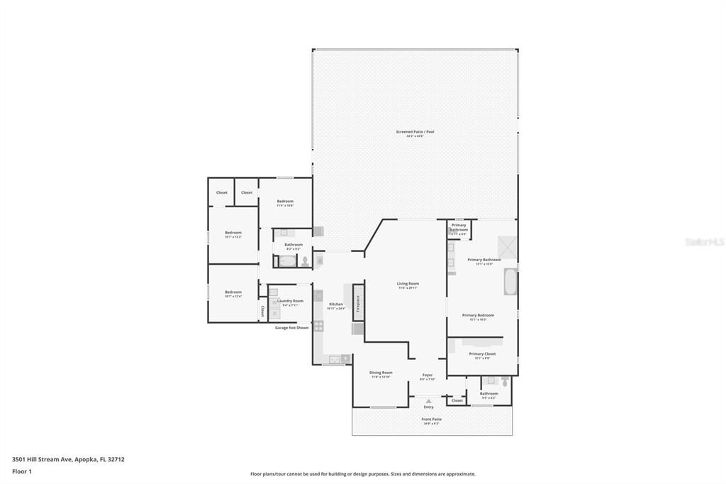
3501 HILL STREAM
Basic Information
List Status
Active
Property Type
Residential
Address
3501 HILL STREAM
APOPKA, FL 32712
United States
Current Price
$959,900.00
Square Feet
2481
Price Per Square Foot
$386.90
List Office Name
SYNERGY HOME REALTY, LLC
List Agent Full Name
Realtor Flor Rodriguez
Subdivision Name
SPRING HOLLOW PH 01
Interior Information
Appliances
Built-In Oven, Convection Oven, Cooktop, Dishwasher, Disposal, Electric Water Heater, Microwave, Range, Range Hood, Refrigerator, Wine Refrigerator
Bedrooms
4
Bathrooms
3
Bathrooms Full
2
Bathrooms Half
1
Cooling
Central Air
Flooring
Brick/Stone, Ceramic Tile, Laminate
Heating
Central
Interior Features
Built-in Features, Ceiling Fan(s), Eating Space In Kitchen, High Ceilings, In Wall Pest System, Pest Guard System, Solid Surface Counters, Solid Wood Cabinets, Split Bedroom, Vaulted Ceiling(s), Walk-In Closet(s), Wet Bar
Pet Restrictions
Buyer to verify pet restrictions
Utilities
BB/HS Internet Available, Cable Available, Cable Connected, Electricity Available, Electricity Connected
Exterior Information
PropertySubType
Single Family Residence
Construction Materials
Stucco, Wood Frame
Exterior Features
Fire Pit, French Doors, Irrigation System, Lighting, Sidewalk, Sliding Doors, Storage
Foundation Details
Slab
Lot Size Acres
2.47
Lot Size Square Feet
107694
Lot Features
Conservation Area, Corner Lot, Cul-De-Sac, In County, Oversized Lot, Zoned for Horses
Roof
Shingle
Additional Information
Community Features
Horses Allowed, Sidewalks
Country
US
County / Parish
Orange
Postal Code
32712
Street Name
HILL STREAM
Street Number
3501
Street Suffix
AVENUE
Tax Year
2025
Total Acreage
2 to less than 5
Year Built
1988
Financial and Legal Information
Association Fee Frequency
Annually
Association Fee Requirement
Required
Association Fee
350
Flood Zone Code
X
Flood Zone Date
September 9, 2009
Flood Zone Panel
12095C0110F
List Price
$959900.00
Listing Contract Date
April 4, 2026
Monthly HOA Amount
29.17
Original List Price
959900
Parcel Number
212028823900010
Pets Allowed
Yes
Special Listing Conditions
None
Tax Annual Amount
6023
Tax Book Number
18-137
Tax Lot
1
Zoning
P-D
Tax Legal Description
SPRING HOLLOW PHASE 1 18/137 LOT 1