3348 CHINOTTO

Basic Information

List Status
Active
Property Type
Residential
Last Updated
MLS Listing Updated
Created
Address

3348 CHINOTTO
LAKE ALFRED, FL 33850
United States

Current Price
$463,900.00
Square Feet
2194
Price Per Square Foot
$211.44
List Office Name
LGI REALTY- FLORIDA, LLC
List Agent Full Name
Gayle Van Wagenen
Subdivision Name
GUM LAKE PRESERVE

Interior Information

Appliances
Dishwasher, Disposal, Electric Water Heater, Exhaust Fan, Ice Maker, Microwave, Range, Refrigerator
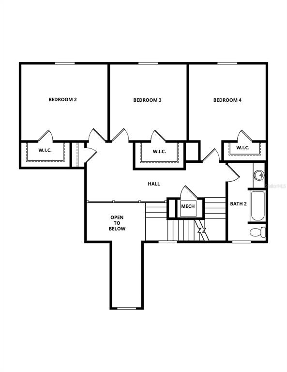
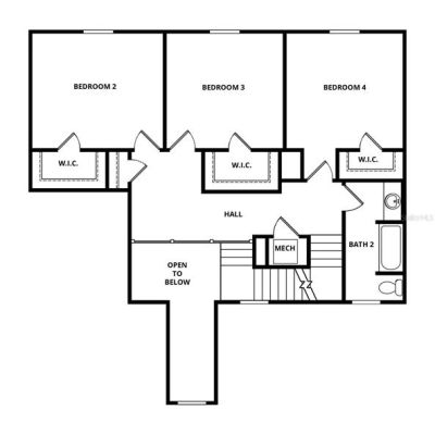
Bedrooms
4
Bathrooms
3
Bathrooms Full
2
Bathrooms Half
1
Cooling
Central Air
Flooring
Carpet, Luxury Vinyl
Heating
Electric, Exhaust Fan, Heat Pump
Interior Features
Attic Ventilator, Ceiling Fan(s), High Ceilings, Kitchen/Family Room Combo, Living Room/Dining Room Combo, Open Floorplan, Pest Guard System, Primary Bedroom Main Floor, Solid Surface Counters, Solid Wood Cabinets, Stone Counters, Thermostat, Walk-In Closet(s), Window Treatments
Utilities
BB/HS Internet Available, Cable Available, Electricity Available, Fiber Optics, Phone Available, Public, Sewer Connected, Street Lights, Underground Utilities, Water Available, Water Connected

Exterior Information

PropertySubType
Single Family Residence
Construction Materials
Block, Stone, Stucco
Exterior Features
Irrigation System, Lighting, Sidewalk, Sliding Doors
Foundation Details
Slab
Lot Size Acres
0.14
Lot Size Square Feet
6264
Lot Features
Corner Lot
Roof
Shingle

Additional Information

Community Features
Community Boat Ramp, Dock, Fishing, Lake, Public Boat Ramp, Water Access, Waterfront, Golf Carts OK, Park, Playground, Sidewalks
Country
US
County / Parish
Polk
Postal Code
33850
Street Name
CHINOTTO
Street Number
3348
Street Suffix
DRIVE
Tax Year
2025
Total Acreage
0 to less than 1/4
Year Built
2026

Financial and Legal Information

Association Fee Frequency
Monthly
Association Fee Includes
Maintenance Grounds
Association Fee Requirement
Required
Association Fee
40
Cumulative Days On Market
61
Days On Market
61
Flood Zone Code
X
List Price
$463900.00
Listing Contract Date
September 9, 2025
Monthly HOA Amount
40
Original List Price
458900
Parcel Number
262720489403000690
Pets Allowed
Yes
Special Listing Conditions
None
Tax Annual Amount
1074.26
Tax Book Number
07-11
Tax Lot
69
Zoning
MPUD
Tax Legal Description
GUM LAKE PRESERVE PHASE 2 PB 210 PGS 07-11 LOT 69

Learn More About This Property

CAPTCHA
"