2731 STATE ROAD 557
Basic Information
List Status
Active
Property Type
Residential
Address
2731 STATE ROAD 557
LAKE ALFRED, FL 33850
United States
Current Price
$774,000.00
Square Feet
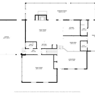
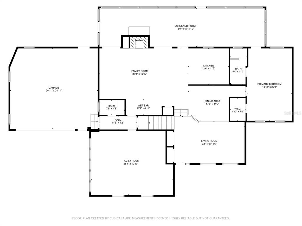
3269
Price Per Square Foot
$236.77
List Office Name
KELLER WILLIAMS REALTY SMART 1
List Agent Full Name
Lisa Simpson
Subdivision Name
LAKE GUM ESTATES
Interior Information
Appliances
Dishwasher, Dryer, Range, Washer
Bedrooms
4
Bathrooms
3
Bathrooms Full
3
Cooling
Central Air
Flooring
Carpet, Tile, Hardwood
Heating
Central
Interior Features
Ceiling Fan(s), PrimaryBedroom Upstairs, Solid Surface Counters
Utilities
Electricity Connected
Exterior Information
PropertySubType
Single Family Residence
Construction Materials
Brick
Exterior Features
Lighting, Private Mailbox
Foundation Details
Slab
Lot Size Acres
1.21
Lot Size Square Feet
52825
Roof
Shingle
Additional Information
Country
US
County / Parish
Polk
Postal Code
33850
Street Name
STATE ROAD 557
Street Number
2731
Tax Year
2024
Total Acreage
1 to less than 2
Year Built
1978
Financial and Legal Information
Cumulative Days On Market
211
Days On Market
211
Flood Zone Code
X,AE
List Price
$774000.00
Listing Contract Date
May 5, 2025
Original List Price
900000
Parcel Number
262717000000041010
Special Listing Conditions
None
Tax Annual Amount
6266.89
Tax Book Number
P-81
Tax Lot
8
Zoning
RC
Tax Legal Description
BEG 1716.63 FT E & 2707.66 FT S OF NW COR OF SEC "ON E R/W OF SR 557 RUN S 01 DEG 22' 20"" E ALONG" "R/W 150 FT S 69 DEG 39' 38"" E 468.26 FT M/L TO" LAKE NLY ALONG LAKE 100 FT M/L TO A PT S 64 DEG "57' 11"" E OF POB RUN N 64 DEG 57' 11"" W 496.80 FT " M/L TO POB BEING LOT 8 OF UNREC LAKE GUM ESTATES & THAT PART OF LOT 7 UNREC LAKE GUM ESTATES DESC AS: ON E R/W OF SR 557 S 65-31-50E 286 FT S68-59-30E 145 FT M/L TO WATERS OF LAKE GUM SLY ALONG WATERS OF LAKE GUM 17.5 FT M/L TO INTER WITH LINE S64- 57-11E FROM POB N64-57-11W 442 FT M/L TO POB