2365 TREASURE HILL
Basic Information
List Status
Active
Property Type
Residential
Address
2365 TREASURE HILL
CLERMONT, FL 34715
United States
Current Price
$449,900.00
Square Feet
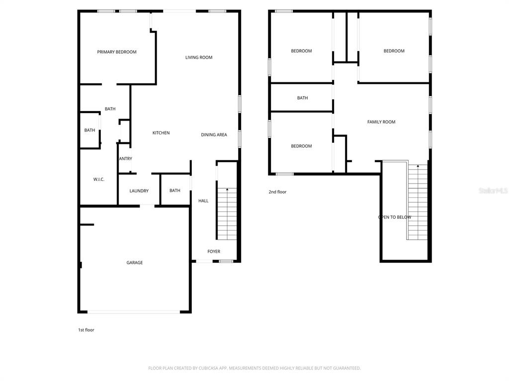
2226
Price Per Square Foot
$202.11
List Office Name
RE/MAX TITANIUM GROUP
List Agent Full Name
Lauren Deem
Subdivision Name
VILLAGES/MINNEOLA HILLS PH 1B
Interior Information
Appliances
Dishwasher, Dryer, Microwave, Range, Washer
Bedrooms
4
Bathrooms
3
Bathrooms Full
2
Bathrooms Half
1
Cooling
Central Air
Flooring
Carpet, Ceramic Tile, Tile
Heating
Central
Interior Features
Eating Space In Kitchen, High Ceilings, Living Room/Dining Room Combo, Open Floorplan, Primary Bedroom Main Floor, Solid Surface Counters, Split Bedroom, Stone Counters, Thermostat, Walk-In Closet(s)
Pet Restrictions
Buyer to verify directly with HOA
Utilities
BB/HS Internet Available, Electricity Connected, Public, Water Connected
Exterior Information
PropertySubType
Single Family Residence
Construction Materials
Block, Stucco
Exterior Features
Irrigation System, Lighting, Sliding Doors
Foundation Details
Slab
Lot Size Acres
0.15
Lot Size Square Feet
6315
Roof
Shingle
Additional Information
Community Features
Clubhouse, Dog Park, Fitness Center, Park, Playground
Country
US
County / Parish
Lake
Postal Code
34715
Street Name
TREASURE HILL
Street Number
2365
Street Suffix
STREET
Tax Year
2025
Total Acreage
0 to less than 1/4
Year Built
2023
Financial and Legal Information
Association Fee Frequency
Monthly
Association Fee Includes
Common Area Taxes, Community Pool, Pool Maintenance, Recreational Facilities
Association Fee Requirement
Required
Association Fee
150
Cumulative Days On Market
151
Flood Zone Code
X
Flood Zone Date
December 12, 2012
Flood Zone Panel
12069C0580E
List Price
$449900.00
Listing Contract Date
April 4, 2026
Monthly HOA Amount
150
Original List Price
449900
Parcel Number
322126001100018700
Pets Allowed
Yes
Special Listing Conditions
None
Tax Annual Amount
8554.18
Tax Book Number
78-43-47
Tax Lot
187
Tax Legal Description
VILLAGES AT MINNEOLA HILLS PHASE 1B PB 78 PG 43-47 LOT 187 ORB 6324 PG 380