1923 MICHIGAN

Basic Information

List Status
Active
Property Type
Residential
Last Updated
MLS Listing Updated
Created
Address

1923 MICHIGAN
KISSIMMEE, FL 34759
United States

Current Price
$265,000.00
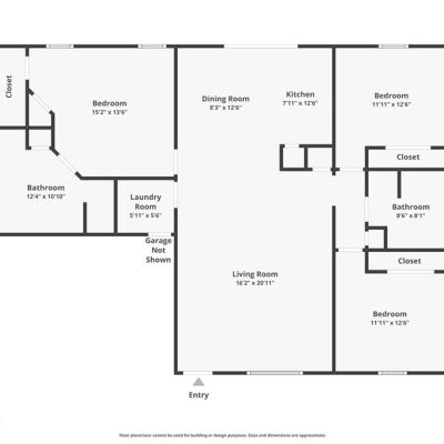
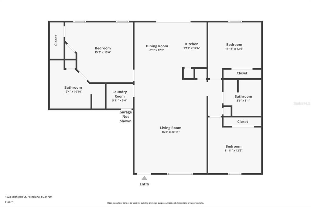
Square Feet
1414
Price Per Square Foot
$187.41
List Office Name
KELLER WILLIAMS CLASSIC
List Agent Full Name
Barbara Liston
Subdivision Name
POINCIANA NBRHD 05 VILLAGE 07

Interior Information

Appliances
Dishwasher, Disposal, Electric Water Heater, Range, Refrigerator
Bedrooms
3
Bathrooms
2
Bathrooms Full
2
Cooling
Central Air
Flooring
Ceramic Tile, Laminate
Heating
Electric
Interior Features
Ceiling Fan(s), Open Floorplan, Primary Bedroom Main Floor, Split Bedroom, Window Treatments
Pet Restrictions
There are no pet restrictions in the community documents. Please verify at apvcommunity.com
Utilities
Electricity Connected, Sewer Connected, Water Connected

Exterior Information

PropertySubType
Single Family Residence
Construction Materials
Block
Exterior Features
Private Entrance, Private Yard, Sliding Doors
Foundation Details
Slab
Lot Size Acres
0.18
Lot Size Square Feet
7828
Lot Features
Corner Lot
Roof
Shingle

Additional Information

Country
US
County / Parish
Polk
Postal Code
34759
Street Name
MICHIGAN
Street Number
1923
Street Suffix
COURT
Tax Year
2025
Total Acreage
0 to less than 1/4
Year Built
2005

Financial and Legal Information

Association Fee Frequency
Monthly
Association Fee Includes
Internet
Association Fee Requirement
Required
Association Fee
100
Cumulative Days On Market
32
Days On Market
32
Flood Zone Code
X
Flood Zone Date
September 9, 2012
Flood Zone Panel
12105C0405G
List Price
$265000.00
Listing Contract Date
March 3, 2026
Monthly HOA Amount
100
Number Of Pets
3
Original List Price
265000
Parcel Number
282803934760011050
Pets Allowed
Number Limit
Special Listing Conditions
None
Tax Annual Amount
2313.7
Tax Book Number
53-19/28
Tax Lot
5
Zoning
PUD
Tax Legal Description
POINCIANA NEIGHBORHOOD 5 VILLAGE 7 PB 53 PGS 19/28 BLK 1100 LOT 5

Learn More About This Property

CAPTCHA
"

Heading replace