1907 MAE

Basic Information

List Status
Active
Property Type
Residential
Last Updated
MLS Listing Updated
Created
Address

1907 MAE
ORLANDO, FL 32806
United States

Current Price
$979,998.00
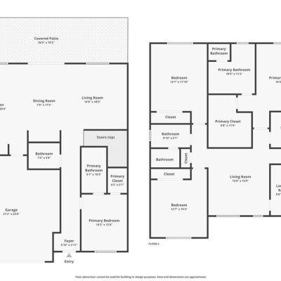
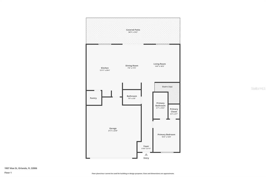
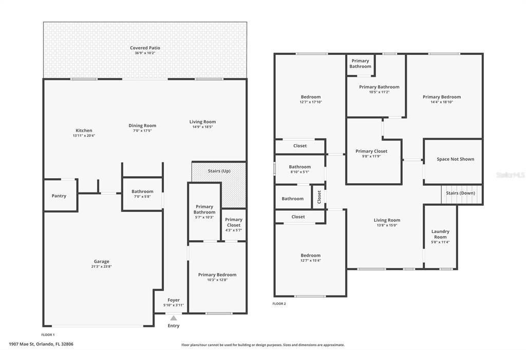
Square Feet
2810
Price Per Square Foot
$348.75
List Office Name
EXIT REALTY PREMIER LEGACY
List Agent Full Name
Makena Clark
Subdivision Name
RICHMOND TERRACE

Interior Information

Appliances
Cooktop, Dishwasher, Microwave, Range Hood, Refrigerator, Wine Refrigerator
Bedrooms
4
Bathrooms
4
Bathrooms Full
3
Bathrooms Half
1
Cooling
Central Air
Flooring
Luxury Vinyl
Heating
Central
Interior Features
Ceiling Fan(s), High Ceilings, Living Room/Dining Room Combo, Open Floorplan, PrimaryBedroom Upstairs, Solid Surface Counters, Thermostat, Walk-In Closet(s)
Utilities
Electricity Connected, Water Connected

Exterior Information

PropertySubType
Single Family Residence
Construction Materials
Block, Wood Frame
Exterior Features
Lighting, Sliding Doors
Foundation Details
Slab
Lot Size Acres
0.19
Lot Size Square Feet
8169
Roof
Shingle

Additional Information

Country
US
County / Parish
Orange
Postal Code
32806
Street Name
MAE
Street Number
1907
Street Suffix
STREET
Tax Year
2025
Total Acreage
0 to less than 1/4
Year Built
2026

Financial and Legal Information

Cumulative Days On Market
1
Days On Market
1
Flood Zone Code
X
Flood Zone Date
September 9, 2009
Flood Zone Panel
12095C0265F
List Price
$979998.00
Listing Contract Date
April 4, 2026
Original List Price
979998
Parcel Number
062330740403070
Special Listing Conditions
None
Tax Annual Amount
4966.43
Tax Book Number
J-85
Tax Lot
7
Zoning
R-2
Tax Legal Description
RICHMOND TERRACE J/85 LOT 7 BLK C & SEE06-23-30-7404-01-000 FOR EXCLUSIVE USE IN 12 FT R/W LABELED WALK IN BLK A PER PBJ/85

Learn More About This Property

CAPTCHA
"