1870 15TH

Basic Information

List Status
Active
Property Type
Residential
Last Updated
MLS Listing Updated
Created
Address

1870 15TH
ORANGE CITY, FL 32763
United States

Current Price
$349,900.00
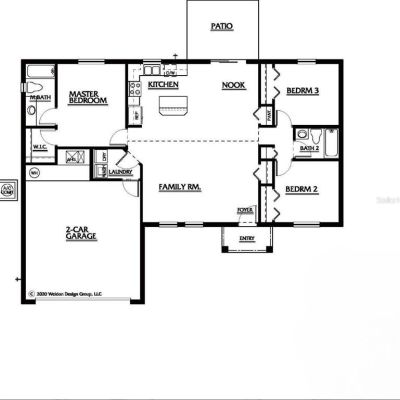
Square Feet
1544
Price Per Square Foot
$226.62
List Office Name
RISE REALTY OF FLORIDA LLC
List Agent Full Name
Regina Sittig
Subdivision Name
WEST HIGHLANDS

Interior Information

Appliances
Dishwasher, Microwave, Range, Refrigerator
Bedrooms
3
Bathrooms
2
Bathrooms Full
2
Cooling
Central Air
Flooring
Carpet, Luxury Vinyl
Heating
Central, Electric
Interior Features
Eating Space In Kitchen, Open Floorplan, Primary Bedroom Main Floor, Split Bedroom
Utilities
Cable Available, Electricity Connected, Water Connected

Exterior Information

PropertySubType
Single Family Residence
Construction Materials
Block, Stucco
Exterior Features
Sliding Doors
Foundation Details
Slab
Lot Size Acres
0.19
Lot Size Square Feet
8400
Roof
Shingle

Additional Information

Country
US
County / Parish
Volusia
Postal Code
32763
Street Name
15TH
Street Number
1870
Street Suffix
STREET
Tax Year
2025
Total Acreage
0 to less than 1/4
Year Built
2026

Financial and Legal Information

Cumulative Days On Market
63
Days On Market
63
Flood Zone Code
x
List Price
$349900.00
Listing Contract Date
January 1, 2026
Original List Price
349900
Parcel Number
800402140360
Pets Allowed
Cats OK, Dogs OK
Special Listing Conditions
None
Tax Annual Amount
1037.98
Tax Book Number
MB6-214
Tax Lot
36
Zoning
01R4
Tax Legal Description
04-18-30 LOTS 36 THRU 38 & INC N 1/2 OF VACATED 25 FT ALLEY LYING ADJ TO SAME VCO RES 2025-69 OR 8706 PG 2056 BLK 114 WEST HIGHLANDS MB 6 PGS 214 MB 21 PG 173 PER OR 1737 PG 0626 PER OR 7805 PG 4024 PER OR 8542 PG 0222 PER OR 8600 PG 1315

Learn More About This Property

CAPTCHA
"

Heading replace