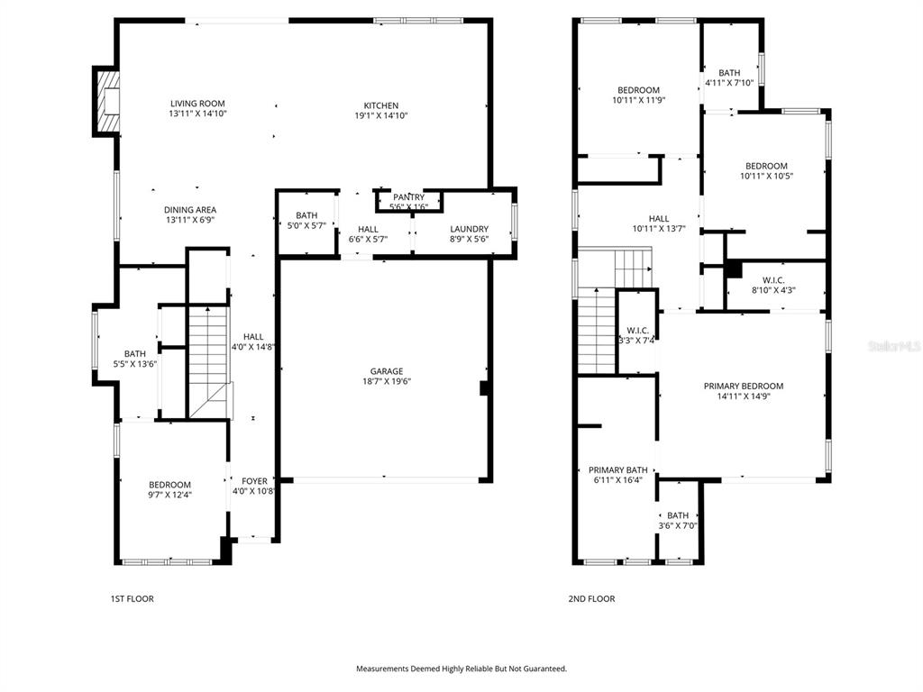
1751 GOODRICH

Basic Information

List Status
Active
Property Type
Residential
Last Updated
MLS Listing Updated
Created
Address

1751 GOODRICH
WINTER PARK, FL 32789
United States

Current Price
$1,425,000.00
Square Feet
2170
Price Per Square Foot
$656.68
List Office Name
EXP REALTY LLC
List Agent Full Name
Stephanie Baldner
Subdivision Name
SYLVAN HEIGHTS

Interior Information

Appliances
Dishwasher, Disposal, Gas Water Heater, Range, Range Hood, Refrigerator, Tankless Water Heater
Bedrooms
4
Bathrooms
4
Bathrooms Full
3
Bathrooms Half
1
Cooling
Central Air
Flooring
Ceramic Tile, Luxury Vinyl
Heating
Central, Heat Pump
Interior Features
Ceiling Fan(s), Eating Space In Kitchen, High Ceilings, Kitchen/Family Room Combo, Living Room/Dining Room Combo, Open Floorplan, PrimaryBedroom Upstairs, Smart Home, Thermostat, Walk-In Closet(s)
Utilities
BB/HS Internet Available, Cable Connected, Electricity Connected, Natural Gas Connected, Sewer Connected, Water Connected

Exterior Information

PropertySubType
Single Family Residence
Construction Materials
Block, Stucco, Wood Siding
Exterior Features
Balcony, Irrigation System, Lighting, Outdoor Grill, Outdoor Kitchen, Rain Gutters, Sliding Doors
Foundation Details
Slab
Lot Size Acres
0.14
Lot Size Square Feet
5997
Lot Features
Landscaped, Level
Roof
Shingle

Additional Information

Country
US
County / Parish
Orange
Postal Code
32789
Street Name
GOODRICH
Street Number
1751
Street Suffix
AVENUE
Tax Year
2024
Total Acreage
0 to less than 1/4
Year Built
2016

Financial and Legal Information

Cumulative Days On Market
84
Days On Market
84
Flood Zone Code
X
Flood Zone Date
September 9, 2009
Flood Zone Panel
12095C0255F
List Price
$1425000.00
Listing Contract Date
January 1, 2026
Original List Price
1475000
Parcel Number
052230850403120
Pets Allowed
Cats OK, Dogs OK
Special Listing Conditions
None
Tax Annual Amount
9263
Tax Book Number
O-2
Tax Lot
12
Zoning
R-1A
Tax Legal Description
SYLVAN HEIGHTS O/2 LOT 12 BLK 3

Learn More About This Property

CAPTCHA
"

Heading replace