1563 PLUNKER
Basic Information
List Status
Active
Property Type
Residential
Address
1563 PLUNKER
DAVENPORT, FL 33896
United States
Current Price
$445,000.00
Square Feet
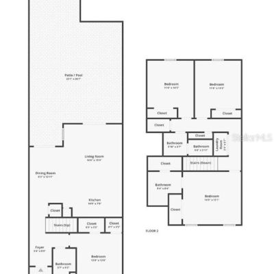
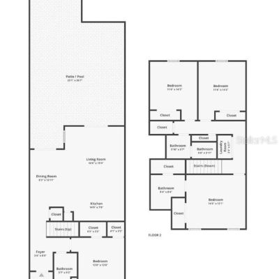
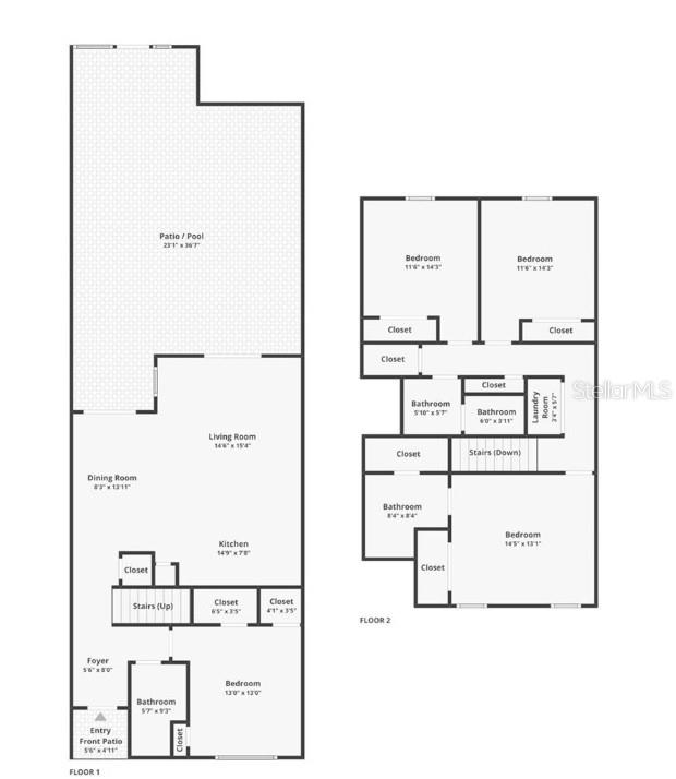
1902
Price Per Square Foot
$233.96
List Office Name
LPT REALTY, LLC
List Agent Full Name
Ane Bertol Bertol
Subdivision Name
STONEYBROOK SOUTH PH J-2 & J-3
Interior Information
Appliances
Dishwasher, Dryer, Range, Refrigerator, Washer
Bedrooms
4
Bathrooms
3
Bathrooms Full
3
Cooling
Central Air
Flooring
Carpet, Ceramic Tile
Heating
Electric
Interior Features
Ceiling Fan(s), Thermostat
Utilities
Cable Connected, Electricity Connected, Sewer Connected, Water Connected
Exterior Information
PropertySubType
Townhouse
Construction Materials
Block, Stone
Exterior Features
Irrigation System
Foundation Details
Block, Slab
Lot Size Acres
0.05
Lot Size Square Feet
2178
Roof
Shake
Additional Information
Community Features
Clubhouse, Fitness Center, Gated Community - Guard, Golf Carts OK, Golf, Playground, Pool, Restaurant, Tennis Court(s)
Country
US
County / Parish
Polk
Postal Code
33896
Street Name
PLUNKER
Street Number
1563
Street Suffix
DRIVE
Tax Year
2024
Total Acreage
0 to less than 1/4
Year Built
2017
Financial and Legal Information
Association Fee Frequency
Monthly
Association Fee Includes
24-Hour Guard, Community Pool, Maintenance Structure, Security, Trash
Association Fee Requirement
Required
Association Fee
389
Cumulative Days On Market
94
Days On Market
94
Flood Zone Code
X
Flood Zone Date
June 6, 2013
Flood Zone Panel
12097C0020G
List Price
$445000.00
Listing Contract Date
November 11, 2025
Monthly HOA Amount
389
Original List Price
450000
Parcel Number
312527512800011040
Pets Allowed
Cats OK, Dogs OK
Special Listing Conditions
None
Tax Annual Amount
6899
Tax Book Number
24-181-188
Tax Lot
104
Zoning
P-D
Tax Legal Description
STONEYBROOK SOUTH PH J-2 & J-3 PB 24 PGS 181-188 LOT 104