149 LAYNEWADE

Basic Information

List Status
Active
Property Type
Residential
Last Updated
MLS Listing Updated
Created
Address

149 LAYNEWADE
POLK CITY, FL 33868
United States

Current Price
$599,000.00
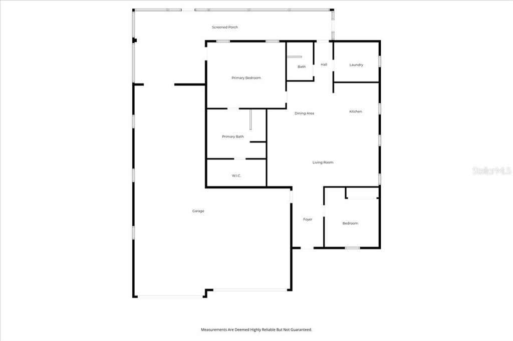
Square Feet
1794
Price Per Square Foot
$333.89
List Office Name
MOSN REALTY
List Agent Full Name
Patricia Toogood
Subdivision Name
MT OLIVE SHORES NORTH ADD 04

Interior Information

Appliances
Built-In Oven, Cooktop, Dishwasher, Disposal, Dryer, Microwave, Refrigerator, Tankless Water Heater, Washer
Bedrooms
2
Bathrooms
2
Bathrooms Full
2
Cooling
Central Air
Flooring
Ceramic Tile, Engineered Hardwood
Heating
Central
Interior Features
Ceiling Fan(s), Central Vacuum, High Ceilings, Open Floorplan, Skylight(s), Walk-In Closet(s), Window Treatments
Utilities
Electricity Connected, Sewer Connected, Solar, Water Connected

Exterior Information

PropertySubType
Single Family Residence
Construction Materials
Stucco
Exterior Features
Irrigation System
Foundation Details
Slab
Lot Size Acres
0.22
Lot Size Square Feet
9749
Roof
Shingle

Additional Information

Community Features
Community Boat Ramp, Fishing, Dog Park, Fitness Center, Gated Community - Guard, Golf Carts OK, Pool
Country
US
County / Parish
Polk
Postal Code
33868
Street Name
LAYNEWADE
Street Number
149
Street Suffix
ROAD
Tax Year
2025
Total Acreage
0 to less than 1/4
Year Built
2020

Financial and Legal Information

Association Fee Frequency
Annually
Association Fee Includes
24-Hour Guard
Association Fee Requirement
Required
Association Fee
2000
Cumulative Days On Market
91
Flood Zone Code
X
Flood Zone Date
December 12, 2016
Flood Zone Panel
12105C0190G
List Price
$599000.00
Listing Contract Date
May 5, 2026
Monthly HOA Amount
166.67
Original List Price
599000
Parcel Number
252705298332001920
Pets Allowed
Yes
Special Listing Conditions
None
Tax Annual Amount
5875
Tax Book Number
140-12-16
Tax Lot
192
Tax Legal Description
MT OLIVE SHORES NORTH FOURTH ADDITION PB 140 PGS 12-16 LOT 192

Learn More About This Property

CAPTCHA
"