14502 SCOTCH PINE
Basic Information
List Status
Active
Property Type
Residential
Address
14502 SCOTCH PINE
ORLANDO, FL 32832
United States
Current Price
$1,999,999.00
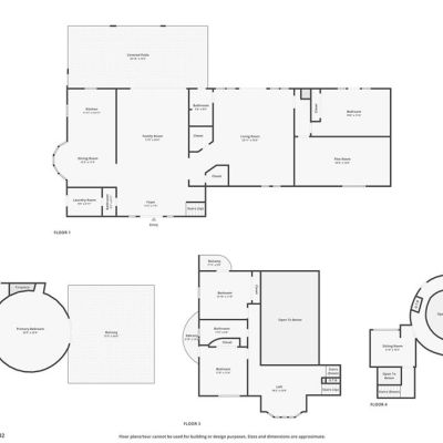
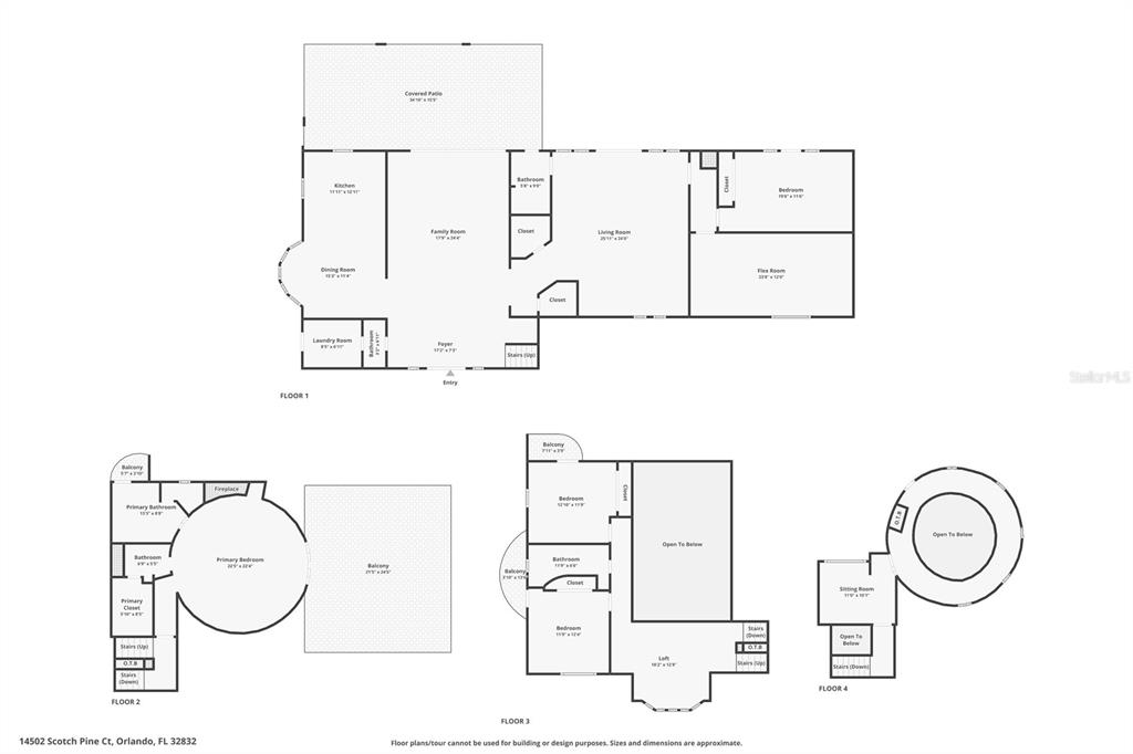
Square Feet
4680
Price Per Square Foot
$427.35
List Office Name
REAL BROKER, LLC
List Agent Full Name
Peter Luu
Subdivision Name
LAKE AND PINES ESTATES
Interior Information
Appliances
Dishwasher, Disposal, Dryer, Electric Water Heater, Microwave, Range, Refrigerator, Washer
Bedrooms
5
Bathrooms
4
Bathrooms Full
3
Bathrooms Half
1
Cooling
Central Air
Flooring
Carpet, Ceramic Tile, Engineered Hardwood
Heating
Electric
Interior Features
Built-in Features, Cathedral Ceiling(s), Ceiling Fan(s), Chair Rail, Crown Molding, Eating Space In Kitchen, High Ceilings, PrimaryBedroom Upstairs, Solid Wood Cabinets, Split Bedroom, Stone Counters, Vaulted Ceiling(s), Walk-In Closet(s)
Utilities
Electricity Connected
Exterior Information
PropertySubType
Single Family Residence
Construction Materials
Block, Stucco, Wood Frame
Exterior Features
Irrigation System
Foundation Details
Slab
Lot Size Acres
10.00
Lot Size Square Feet
435753
Lot Features
Cul-De-Sac, In County, Landscaped, Level, Oversized Lot, Zoned for Horses
Roof
Shingle
Additional Information
Community Features
Dock, Water Access, Stable(s)
Country
US
County / Parish
Orange
Postal Code
32832
Street Name
SCOTCH PINE
Street Number
14502
Street Suffix
COURT
Tax Year
2025
Total Acreage
10 to less than 20
Year Built
1991
Financial and Legal Information
Association Fee Requirement
Optional
Cumulative Days On Market
1
Days On Market
1
Flood Zone Code
X
List Price
$1999999.00
Listing Contract Date
March 3, 2026
Original List Price
1999999
Parcel Number
252431424600400
Pets Allowed
Yes
Special Listing Conditions
None
Tax Annual Amount
7847.58
Tax Book Number
0012/0035
Tax Lot
400
Zoning
R-CE-2
Tax Legal Description
LAKE AND PINES ESTATES 12/35 LOT 40