1307 BALTIMORE

Basic Information

List Status
Active
Property Type
Residential
Last Updated
MLS Listing Updated
Created
Address

1307 BALTIMORE
ORLANDO, FL 32810
United States

Current Price
$540,000.00
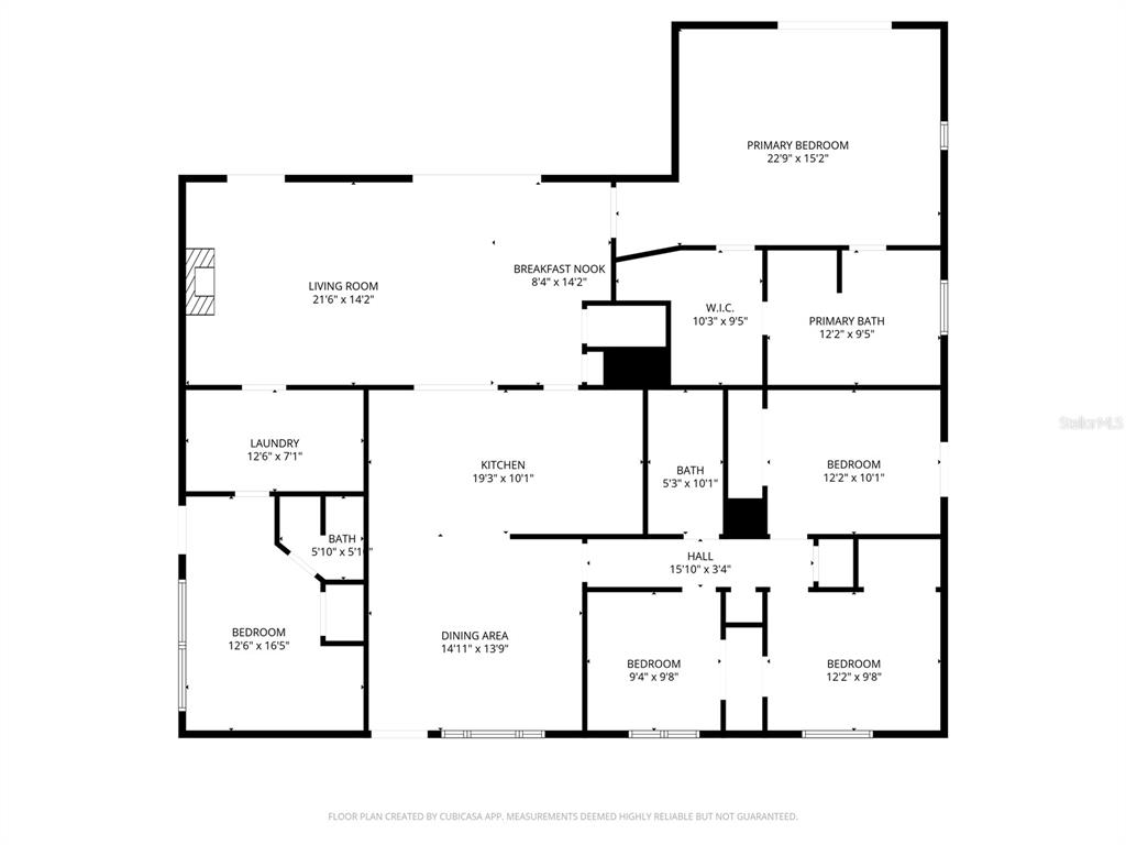
Square Feet
2340
Price Per Square Foot
$230.77
List Office Name
SOUTHERN LIFE REALTY
List Agent Full Name
Julee Cymbal
Subdivision Name
KINGSWOOD MANOR

Interior Information

Appliances
Bar Fridge, Convection Oven, Dishwasher, Disposal, Electric Water Heater, Exhaust Fan, Freezer, Ice Maker, Microwave, Range, Refrigerator, Washer
Bedrooms
5
Bathrooms
3
Bathrooms Full
3
Cooling
Central Air
Flooring
Ceramic Tile, Hardwood
Heating
Central, Electric
Interior Features
Accessibility Features, Attic Fan, Ceiling Fan(s), High Ceilings, Kitchen/Family Room Combo, Living Room/Dining Room Combo, Open Floorplan, Skylight(s), Split Bedroom, Walk-In Closet(s), Wet Bar
Utilities
Cable Available, Electricity Available, Phone Available, Public

Exterior Information

PropertySubType
Single Family Residence
Construction Materials
Block
Exterior Features
Lighting, Rain Gutters
Foundation Details
Slab
Lot Size Acres
0.24
Lot Size Square Feet
10387
Roof
Shingle

Additional Information

Country
US
County / Parish
Orange
Postal Code
32810
Street Name
BALTIMORE
Street Number
1307
Street Suffix
DRIVE
Tax Year
2024
Total Acreage
0 to less than 1/4
Year Built
1959

Financial and Legal Information

Cumulative Days On Market
30
Days On Market
30
Flood Zone Code
X
Flood Zone Date
September 9, 2009
Flood Zone Panel
12095C0235F
List Price
$540000.00
Listing Contract Date
October 10, 2025
Original List Price
549900
Parcel Number
032229419700340
Special Listing Conditions
None
Tax Annual Amount
2905
Tax Book Number
X-16
Tax Lot
34
Zoning
R-1A
Tax Legal Description
KINGSWOOD MANOR X/16 LOT 34

Learn More About This Property

CAPTCHA
"