1125 MUNSTER

Basic Information

List Status
Active
Property Type
Residential
Last Updated
MLS Listing Updated
Created
Address

1125 MUNSTER
ORLANDO, FL 32803
United States

Current Price
$849,000.00
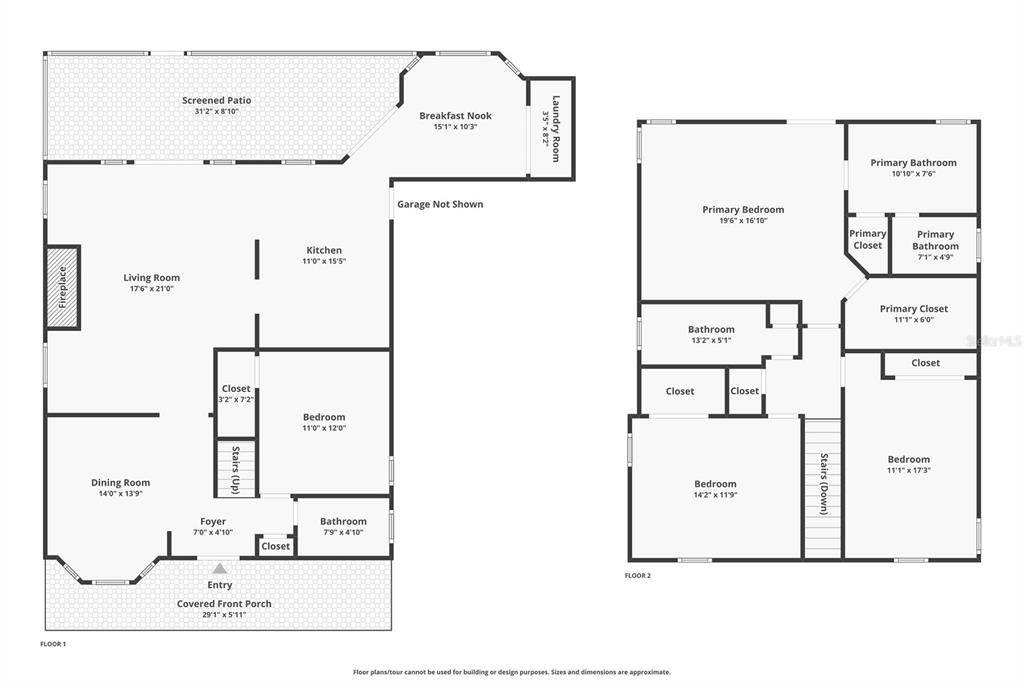
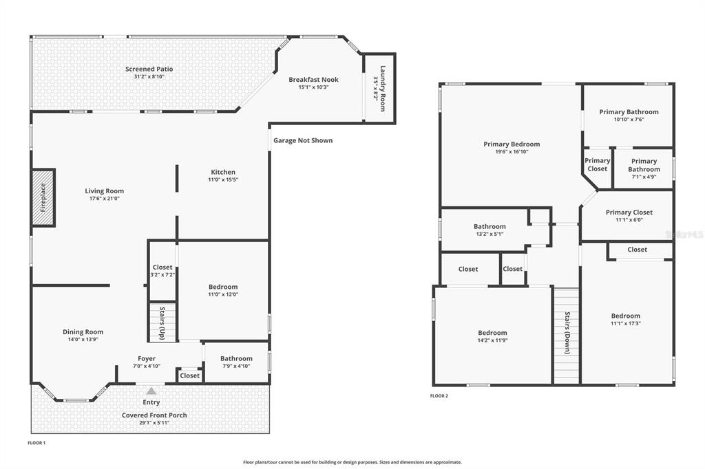
Square Feet
2432
Price Per Square Foot
$349.10
List Office Name
KELLER WILLIAMS WINTER PARK
List Agent Full Name
Steven Ritz
Subdivision Name
LAKE OAKS

Interior Information

Appliances
Dishwasher, Microwave, Range, Refrigerator
Bedrooms
4
Bathrooms
3
Bathrooms Full
3
Cooling
Central Air
Flooring
Carpet, Ceramic Tile, Hardwood
Heating
Central, Electric
Interior Features
Ceiling Fan(s), PrimaryBedroom Upstairs, Walk-In Closet(s), Window Treatments
Pet Restrictions
See City of Orlando for restrictions
Utilities
Cable Connected, Electricity Connected, Propane, Public, Street Lights, Water Connected

Exterior Information

PropertySubType
Single Family Residence
Construction Materials
Vinyl Siding, Wood Frame
Exterior Features
Awning(s), Irrigation System, Rain Gutters, Sidewalk
Foundation Details
Crawlspace
Lot Size Acres
0.19
Lot Size Square Feet
8469
Lot Features
Sidewalk
Roof
Metal

Additional Information

Country
US
County / Parish
Orange
Postal Code
32803
Street Name
MUNSTER
Street Number
1125
Street Suffix
STREET
Tax Year
2024
Total Acreage
0 to less than 1/4
Year Built
1985

Financial and Legal Information

Cumulative Days On Market
120
Days On Market
120
Flood Zone Code
X
Flood Zone Date
September 9, 2009
Flood Zone Panel
12095C0255F
List Price
$849000.00
Listing Contract Date
December 12, 2025
Original List Price
889000
Parcel Number
132229470001010
Pets Allowed
Yes
Special Listing Conditions
None
Tax Annual Amount
4277.84
Tax Book Number
R-118
Tax Lot
1
Zoning
R-1AA/T
Tax Legal Description
LAKE OAKS R/118 LOT 1 (LESS RD R/W SE COR) BLK A

Learn More About This Property

CAPTCHA
"

Heading replace