1070 LIBBY

Basic Information

List Status
Active
Property Type
Residential
Last Updated
MLS Listing Updated
Created
Address

1070 LIBBY
DAYTONA BEACH, FL 32117
United States

Current Price
$364,900.00
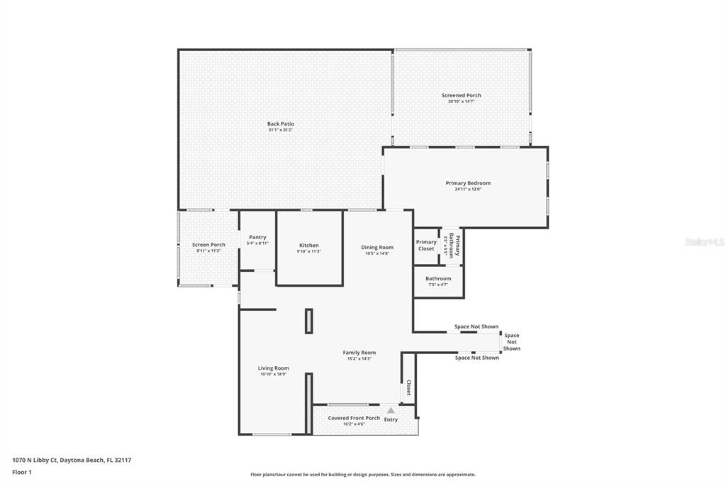
Square Feet
1792
Price Per Square Foot
$203.63
List Office Name
EXP REALTY LLC
List Agent Full Name
Veronica Figueroa
Subdivision Name
CEDAR HIGHLAND UNIT 01

Interior Information

Appliances
Dishwasher, Microwave, Range, Refrigerator
Bedrooms
4
Bathrooms
2
Bathrooms Full
2
Cooling
Central Air
Flooring
Laminate, Tile
Heating
Electric
Interior Features
Ceiling Fan(s), Living Room/Dining Room Combo
Pet Restrictions
Buyer to confirm any pet restrictions with HOA/City/County during inspection period.
Utilities
Public

Exterior Information

PropertySubType
Single Family Residence
Construction Materials
Block, Concrete, Stucco
Exterior Features
Other
Foundation Details
Slab
Lot Size Acres
0.19
Lot Size Square Feet
8250
Roof
Metal

Additional Information

Country
US
County / Parish
Volusia
Postal Code
32117
Street Name
LIBBY
Street Number
1070
Street Suffix
COURT
Tax Year
2024
Total Acreage
0 to less than 1/4
Year Built
1968

Financial and Legal Information

Cumulative Days On Market
1
Days On Market
1
Flood Zone Code
X
Flood Zone Date
February 2, 2014
Flood Zone Panel
12127C0352H
List Price
$364900.00
Listing Contract Date
January 1, 2026
Original List Price
364900
Parcel Number
15321119000040
Pets Allowed
Yes
Special Listing Conditions
None
Tax Annual Amount
3520
Tax Book Number
29-48
Tax Lot
4
Zoning
X
Tax Legal Description
LOT 4 CEDAR HIGHLAND UNIT 1 MB 29 PG 48 PER OR 1612 PG 0360 PER OR 7747 PG 4499 PER OR 7831 PG 1132 PER OR 8592 PG 1768

Learn More About This Property

CAPTCHA
"