10007 LITTLE ALCOVE

Basic Information

List Status
Active
Property Type
Residential
Last Updated
MLS Listing Updated
Created
Address

10007 LITTLE ALCOVE
WINTER GARDEN, FL 34787
United States

Current Price
$999,990.00
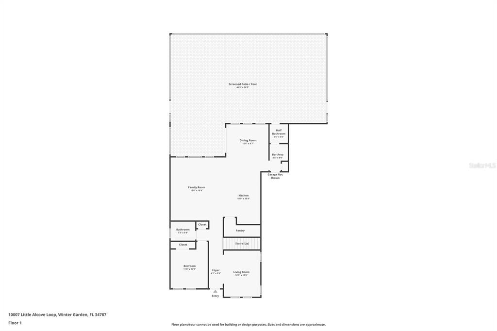
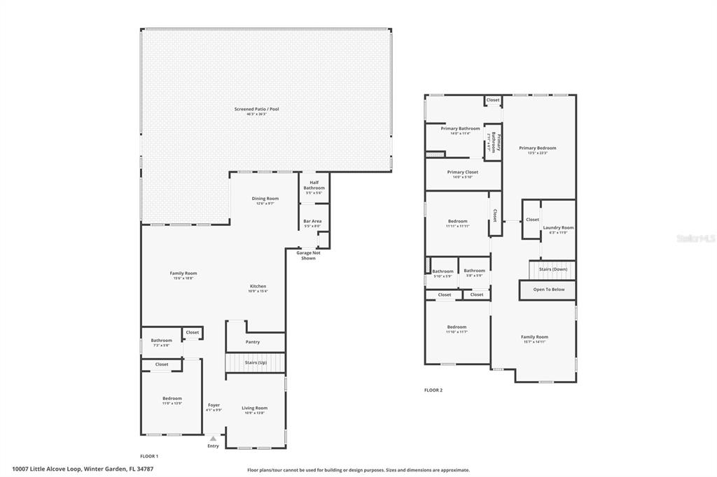
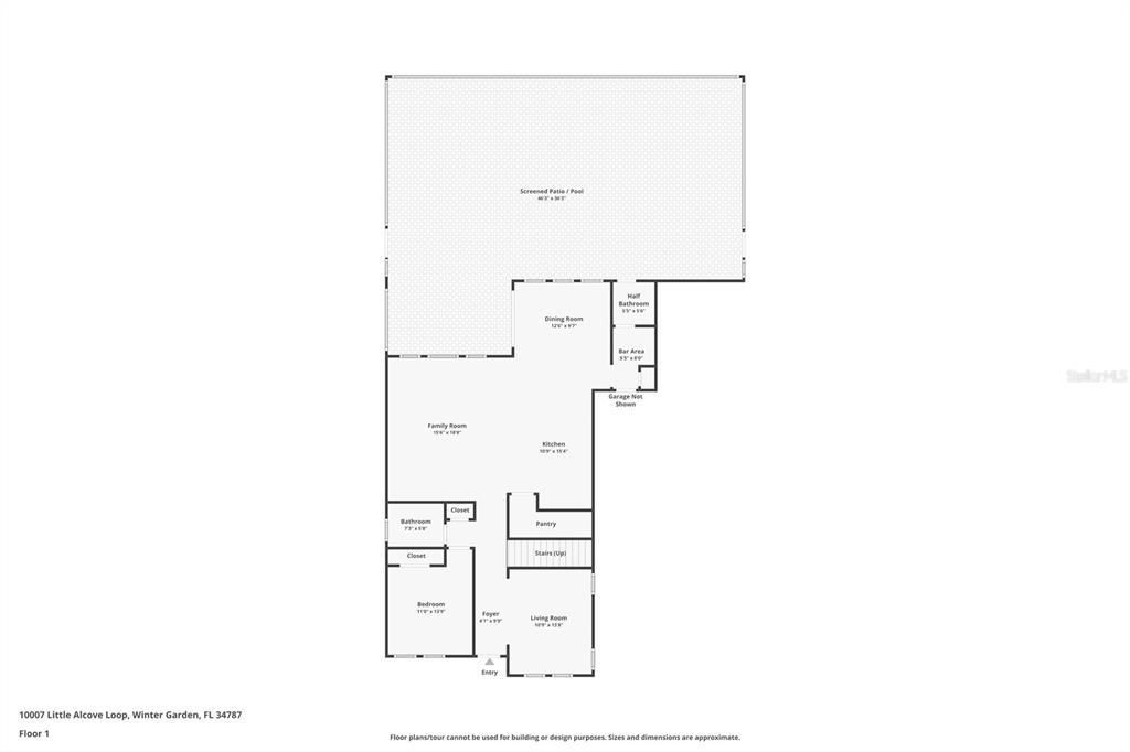
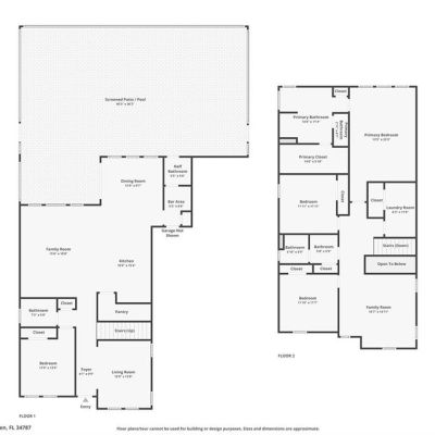
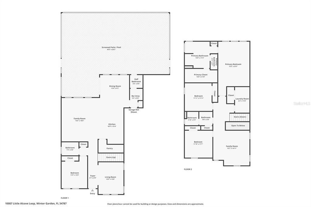
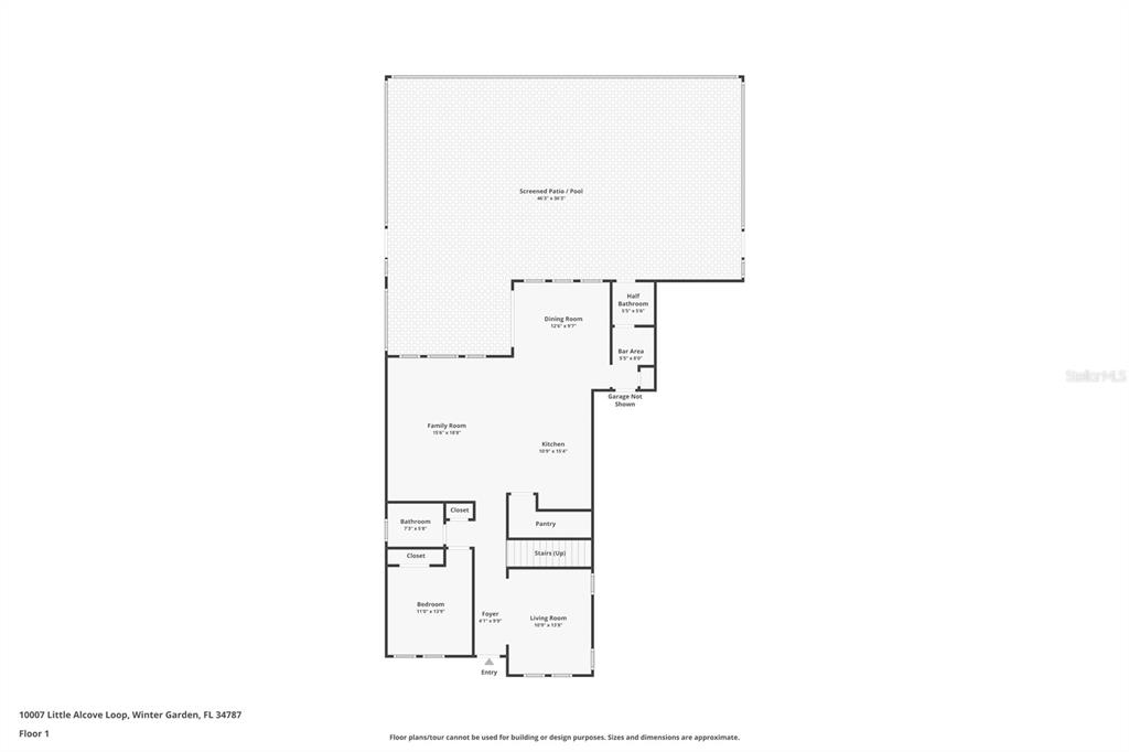
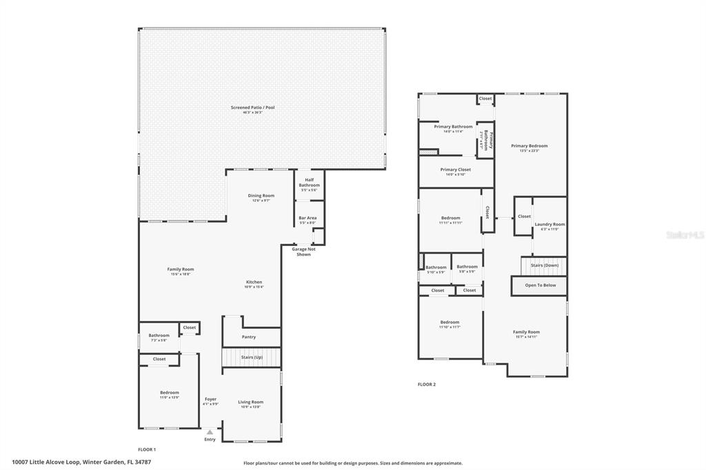
Square Feet
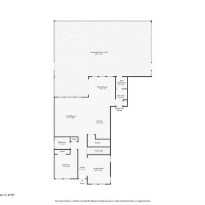
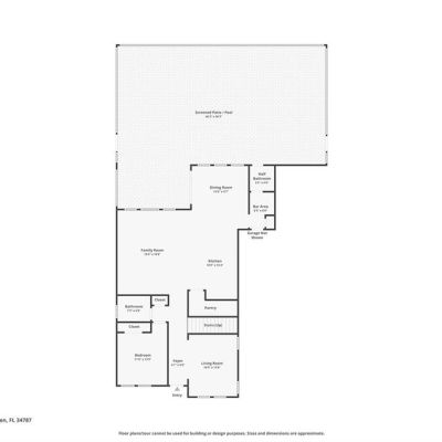
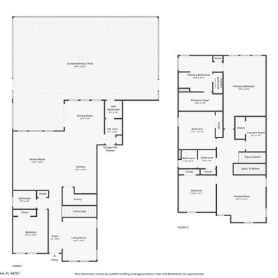
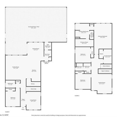
2921
Price Per Square Foot
$342.35
List Office Name
MBT REALTY LLC
List Agent Full Name
Victor Barroeta
Subdivision Name
WATERLEIGH PH 2B

Interior Information

Appliances
Built-In Oven, Convection Oven, Cooktop, Dishwasher, Disposal, Dryer, Microwave, Refrigerator, Washer
Bedrooms
4
Bathrooms
4
Bathrooms Full
3
Bathrooms Half
1
Cooling
Central Air
Flooring
Carpet, Ceramic Tile
Heating
Central, Electric
Interior Features
Ceiling Fan(s), Kitchen/Family Room Combo, Open Floorplan, Solid Surface Counters, Solid Wood Cabinets, Walk-In Closet(s), Window Treatments
Utilities
BB/HS Internet Available, Cable Available, Cable Connected, Electricity Connected, Sprinkler Meter, Street Lights

Exterior Information

PropertySubType
Single Family Residence
Construction Materials
Block, Concrete, Stucco
Exterior Features
Irrigation System, Sidewalk, Sliding Doors, Sprinkler Metered
Foundation Details
Slab
Lot Size Acres
0.24
Lot Size Square Feet
10586
Lot Features
Corner Lot, Oversized Lot, Sidewalk
Roof
Tile

Additional Information

Community Features
Fishing, Waterfront, Fitness Center, Park, Playground, Pool, Tennis Court(s)
Country
US
County / Parish
Orange
Postal Code
34787
Street Name
LITTLE ALCOVE
Street Number
10007
Street Suffix
LOOP
Tax Year
2024
Total Acreage
0 to less than 1/4
Year Built
2018

Financial and Legal Information

Association Fee Frequency
Monthly
Association Fee Includes
Community Pool, Maintenance Grounds, Recreational Facilities
Association Fee Requirement
Required
Association Fee
250
Cumulative Days On Market
170
Days On Market
170
Flood Zone Code
X
Flood Zone Date
September 9, 2009
Flood Zone Panel
12095C0215F
List Price
$999990.00
Listing Contract Date
August 8, 2025
Monthly HOA Amount
250
Original List Price
1199900
Parcel Number
072427750202660
Pets Allowed
Yes
Special Listing Conditions
None
Tax Annual Amount
6381.42
Tax Book Number
94/90
Tax Lot
266
Zoning
P-D
Tax Legal Description
WATERLEIGH PHASE 2B 94/90 LOT 266

Learn More About This Property

CAPTCHA
"