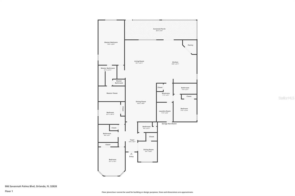
906 SAVANNAH PALMS
Basic Information
List Status
Active
Property Type
Residential
Address
906 SAVANNAH PALMS
ORLANDO, FL 32828
United States
Current Price
$675,000.00
Square Feet
2951
Price Per Square Foot
$228.74
List Office Name
WEMERT GROUP REALTY LLC
List Agent Full Name
Jenny Wemert
Subdivision Name
SAVANNAH PALMS
Interior Information
Appliances
Built-In Oven, Cooktop, Disposal, Exhaust Fan, Microwave, Range Hood, Refrigerator
Bedrooms
4
Bathrooms
4
Bathrooms Full
3
Bathrooms Half
1
Cooling
Central Air
Flooring
Ceramic Tile
Heating
Central, Electric
Interior Features
Built-in Features, Ceiling Fan(s), Eating Space In Kitchen, High Ceilings, Living Room/Dining Room Combo, Open Floorplan, Primary Bedroom Main Floor, Smart Home, Solid Surface Counters, Split Bedroom, Thermostat, Tray Ceiling(s), Walk-In Closet(s)
Pet Restrictions
Buyer to verify pet restrictions with HOA and/or city/county
Utilities
BB/HS Internet Available, Cable Available, Electricity Connected, Public, Sewer Connected, Water Connected
Exterior Information
PropertySubType
Single Family Residence
Construction Materials
Block, Stucco
Exterior Features
Irrigation System, Lighting, Sidewalk, Sliding Doors
Foundation Details
Slab
Lot Size Acres
0.20
Lot Size Square Feet
8514
Lot Features
Corner Lot, Landscaped, Sidewalk
Roof
Shingle
Additional Information
Community Features
Playground, Sidewalks
Country
US
County / Parish
Orange
Postal Code
32828
Street Name
SAVANNAH PALMS
Street Number
906
Street Suffix
BOULEVARD
Tax Year
2025
Total Acreage
0 to less than 1/4
Year Built
2023
Financial and Legal Information
Association Fee Frequency
Monthly
Association Fee Includes
Internet
Association Fee Requirement
Required
Association Fee
165
Cumulative Days On Market
1
Days On Market
1
Flood Zone Code
X
Flood Zone Date
September 9, 2009
Flood Zone Panel
12095C0295F
List Price
$675000.00
Listing Contract Date
March 3, 2026
Monthly HOA Amount
165
Number Of Pets
3
Original List Price
675000
Parcel Number
232231785000010
Pets Allowed
Number Limit, Yes
Special Listing Conditions
None
Tax Annual Amount
9176
Tax Book Number
109/102
Tax Lot
1
Zoning
RSTD R-1
Tax Legal Description
SAVANNAH PALMS 109/102 LOT 1