904 CHARLES

Basic Information

List Status
Active
Property Type
Residential
Last Updated
MLS Listing Updated
Created
Address

904 CHARLES
PORT ORANGE, FL 32129
United States

Current Price
$355,000.00
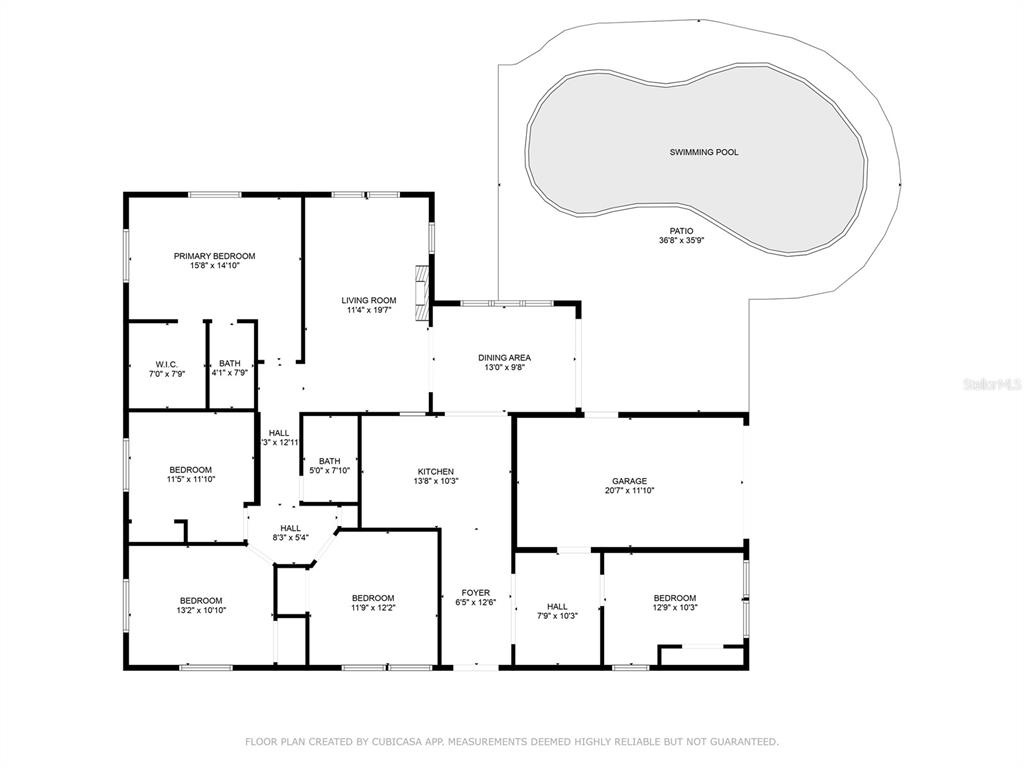
Square Feet
1608
Price Per Square Foot
$220.77
List Office Name
LPT REALTY, LLC
List Agent Full Name
Miranda Stripling
Subdivision Name
CONRAD SUB &ANDDEENS ORANGE PARK

Interior Information

Appliances
Dishwasher, Microwave, Range, Refrigerator
Bedrooms
5
Bathrooms
2
Bathrooms Full
2
Cooling
Central Air
Flooring
Ceramic Tile
Heating
Central
Interior Features
Ceiling Fan(s)
Utilities
Electricity Connected, Water Connected

Exterior Information

PropertySubType
Single Family Residence
Construction Materials
Block
Exterior Features
Storage
Foundation Details
Slab
Lot Size Acres
0.21
Lot Size Square Feet
9148
Lot Features
Corner Lot
Roof
Shingle

Additional Information

Country
US
County / Parish
Volusia
Postal Code
32129
Street Name
CHARLES
Street Number
904
Street Suffix
STREET
Tax Year
2024
Total Acreage
0 to less than 1/4
Year Built
1968

Financial and Legal Information

Cumulative Days On Market
151
Days On Market
151
Flood Zone Code
X
List Price
$355000.00
Listing Contract Date
August 8, 2025
Original List Price
375000
Parcel Number
630402160090
Special Listing Conditions
None
Tax Annual Amount
3474
Tax Book Number
02
Tax Lot
0090
Zoning
R1
Tax Legal Description
N 90 FT OF LOTS 9 & 10 BLK 16 PORTONA MB 10 PG 107

Learn More About This Property

CAPTCHA
"