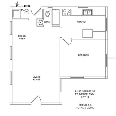
9 1ST

Basic Information

List Status
Active
Property Type
Residential
Last Updated
MLS Listing Updated
Created
Address

9 1ST
FORT MEADE, FL 33841
United States

Current Price
$134,950.00
Square Feet
788
Price Per Square Foot
$171.26
List Office Name
PORCHLIGHT HOMES LLC
List Agent Full Name
Angie Reynolds
Subdivision Name
NEWSOME & JOHNSON SUB

Interior Information

Appliances
Microwave, Range, Refrigerator
Bedrooms
1
Bathrooms
1
Bathrooms Full
1
Cooling
Wall/Window Unit(s)
Flooring
Carpet, Luxury Vinyl
Heating
Wall Units / Window Unit
Interior Features
Ceiling Fan(s)
Utilities
Public

Exterior Information

PropertySubType
Single Family Residence
Construction Materials
Block
Exterior Features
Other
Foundation Details
Slab
Lot Size Acres
0.11
Lot Size Square Feet
4797
Roof
Shingle

Additional Information

Country
US
County / Parish
Polk
Postal Code
33841
Street Name
1ST
Street Number
9
Street Suffix
STREET
Tax Year
2025
Total Acreage
0 to less than 1/4
Year Built
1947

Financial and Legal Information

Cumulative Days On Market
51
Days On Market
51
Flood Zone Code
x
List Price
$134950.00
Listing Contract Date
December 12, 2025
Original List Price
139950
Parcel Number
253127452500000140
Special Listing Conditions
None
Tax Book Number
2/53
Tax Lot
14
Zoning
C-2
Tax Legal Description
NEWSOME & JOHNSON SUB PB 2 PG 53 LOTS 14

Learn More About This Property

CAPTCHA
"