8837 OAKWOOD

Basic Information

List Status
Active
Property Type
Residential
Last Updated
MLS Listing Updated
Created
Address

8837 OAKWOOD
LAKE WALES, FL 33898
United States

Current Price
$348,999.00
Square Feet
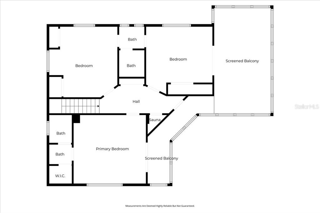
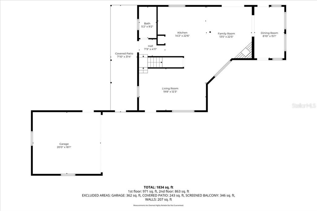
2054
Price Per Square Foot
$169.91
List Office Name
CENTURY 21 MYERS REALTY
List Agent Full Name
Crystal Miller
Subdivision Name
WALK-IN-WATER LAKE ESTATES PH 1

Interior Information

Appliances
Dishwasher, Electric Water Heater, Range, Refrigerator
Bedrooms
3
Bathrooms
3
Bathrooms Full
3
Cooling
Central Air
Flooring
Carpet, Laminate
Heating
Central
Interior Features
Ceiling Fan(s), Eating Space In Kitchen, PrimaryBedroom Upstairs, Sauna, Split Bedroom, Walk-In Closet(s)
Utilities
BB/HS Internet Available, Cable Available, Electricity Connected

Exterior Information

PropertySubType
Single Family Residence
Construction Materials
Brick, Metal Siding
Exterior Features
Balcony, Lighting, Sliding Doors
Foundation Details
Slab
Lot Size Acres
1.85
Lot Size Square Feet
80799
Roof
Shingle

Additional Information

Country
US
County / Parish
Polk
Postal Code
33898
Street Name
OAKWOOD
Street Number
8837
Street Suffix
DRIVE
Tax Year
2025
Total Acreage
1 to less than 2
Year Built
1977

Financial and Legal Information

Association Fee Frequency
Annually
Association Fee Requirement
Optional
Cumulative Days On Market
1
Days On Market
1
Flood Zone Code
X,A
List Price
$348999.00
Listing Contract Date
December 12, 2025
Original List Price
348999
Parcel Number
293020992830001030
Pets Allowed
Yes
Special Listing Conditions
None
Tax Annual Amount
3570
Tax Book Number
64-11
Tax Lot
3
Zoning
RC
Tax Legal Description
WALK-IN-WATER LAKE ESTATES PHASE ONE PB 64 PG 11 LYING IN SECS 20 28 & 29 T-30 R-29 BLK A LOT 3 & ADJACENT LAKE KIKI

Learn More About This Property

CAPTCHA
"