8449 SECRET KEY

Basic Information

List Status
Active
Property Type
Residential
Last Updated
MLS Listing Updated
Created
Address

8449 SECRET KEY
KISSIMMEE, FL 34747
United States

Current Price
$479,000.00
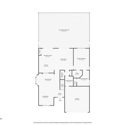
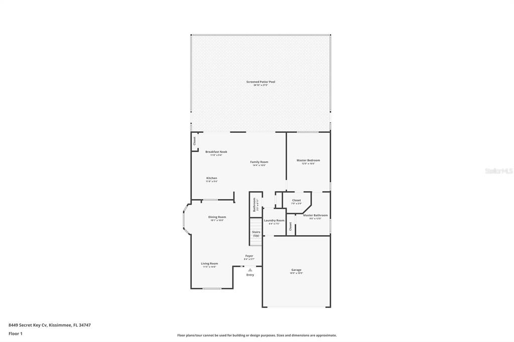
Square Feet
2934
Price Per Square Foot
$163.26
List Office Name
SAND DOLLAR REALTY GROUP INC
List Agent Full Name
Robert Arnold, Jr
Subdivision Name
EMERALD ISLAND RESORT PH 1

Interior Information

Appliances
Dishwasher, Disposal, Electric Water Heater, Microwave, Range, Refrigerator
Bedrooms
7
Bathrooms
5
Bathrooms Full
4
Bathrooms Half
1
Cooling
Central Air
Flooring
Carpet, Tile, Vinyl
Heating
Central, Electric
Interior Features
Ceiling Fan(s), High Ceilings, Kitchen/Family Room Combo, Living Room/Dining Room Combo, Primary Bedroom Main Floor, Thermostat, Walk-In Closet(s)
Pet Restrictions
must verify with HOA
Utilities
BB/HS Internet Available, Electricity Connected, Public, Sewer Connected, Water Connected

Exterior Information

PropertySubType
Single Family Residence
Construction Materials
Block, Concrete, Stucco
Exterior Features
Rain Gutters, Sidewalk, Sliding Doors, Sprinkler Metered
Foundation Details
Slab
Lot Size Acres
0.13
Lot Size Square Feet
5706
Lot Features
In County, Sidewalk
Roof
Shingle

Additional Information

Community Features
Clubhouse, Deed Restrictions, Fitness Center, Gated Community - Guard, Playground, Pool, Sidewalks, Tennis Court(s)
Country
US
County / Parish
Osceola
Postal Code
34747
Street Name
SECRET KEY
Street Number
8449
Street Suffix
COVE
Tax Year
2025
Total Acreage
0 to less than 1/4
Year Built
2002

Financial and Legal Information

Association Fee Frequency
Monthly
Association Fee Includes
Community Pool, Maintenance Grounds, Manager, Recreational Facilities, Security
Association Fee Requirement
Required
Association Fee
482
Cumulative Days On Market
48
Days On Market
48
Flood Zone Code
X
Flood Zone Date
June 6, 2013
Flood Zone Panel
12097C0030G
List Price
$479000.00
Listing Contract Date
January 1, 2026
Monthly HOA Amount
482
Original List Price
499900
Parcel Number
092527305100010550
Pets Allowed
Cats OK, Dogs OK
Special Listing Conditions
None
Tax Annual Amount
5441.11
Tax Book Number
12-145-150
Tax Lot
55
Zoning
PD
Tax Legal Description
EMERALD ISLAND RESORT PHASE 1 PB 12 PGS 145-150 LOT 55

Learn More About This Property

CAPTCHA
"