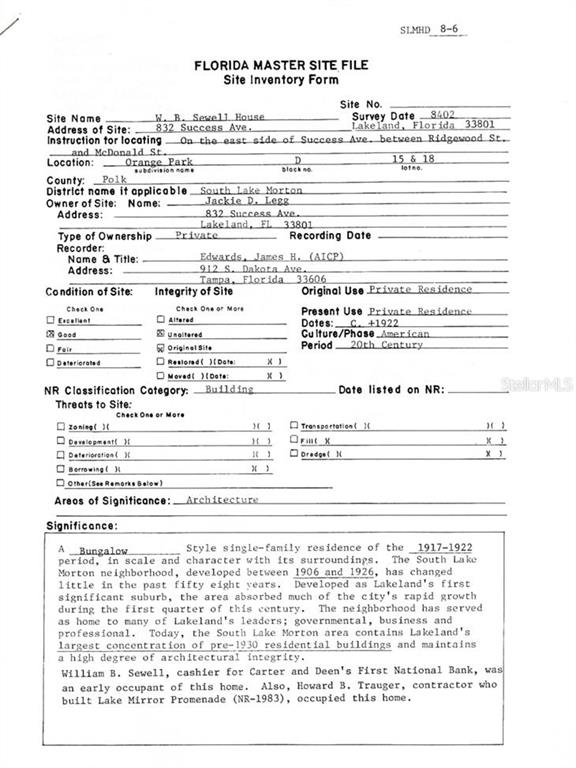
832 SUCCESS
Basic Information
List Status
Active
Property Type
Residential
Address
832 SUCCESS
LAKELAND, FL 33801
United States
Current Price
$565,000.00
Square Feet
1716
Price Per Square Foot
$329.25
List Office Name
REMAX EXPERTS
List Agent Full Name
Betsy Martin
Subdivision Name
ORANGE PARK ADD
Interior Information
Appliances
Dishwasher, Dryer, Electric Water Heater, Microwave, Range, Refrigerator, Washer
Bedrooms
3
Bathrooms
3
Bathrooms Full
3
Cooling
Central Air
Flooring
Tile, Hardwood
Heating
Central, Electric, Heat Pump
Interior Features
Ceiling Fan(s), Crown Molding, Primary Bedroom Main Floor, Solid Wood Cabinets, Stone Counters
Pet Restrictions
Pet restrictions per City of Lakeland zoning
Utilities
Cable Connected, Electricity Connected, Fire Hydrant, Public, Sewer Connected, Street Lights, Water Connected
Exterior Information
PropertySubType
Single Family Residence
Construction Materials
Stucco, Wood Frame
Exterior Features
French Doors, Irrigation System, RV Hookup, Sidewalk
Foundation Details
Crawlspace
Lot Size Acres
0.28
Lot Size Square Feet
12201
Lot Features
Historic District, City Lot, Landscaped, Level, Near Public Transit, Sidewalk
Roof
Shingle
Additional Information
Country
US
County / Parish
Polk
Postal Code
33801
Street Name
SUCCESS
Street Number
832
Street Suffix
AVENUE
Tax Year
2025
Total Acreage
1/4 to less than 1/2
Year Built
1922
Financial and Legal Information
Flood Zone Code
X
Flood Zone Date
December 12, 2016
Flood Zone Panel
12105C0315G
List Price
$565000.00
Listing Contract Date
April 4, 2026
Original List Price
565000
Parcel Number
242819224000004150
Pets Allowed
Yes
Special Listing Conditions
None
Tax Annual Amount
3069.66
Tax Book Number
1-105
Tax Lot
15
Zoning
RA-4
Tax Legal Description
ORANGE PARK ADD PB 1 PG 105 BLK D LOTS 15 & 18