8124 BRIDGEPORT BAY

Basic Information

List Status
Active
Property Type
Residential
Last Updated
MLS Listing Updated
Created
Address

8124 BRIDGEPORT BAY
MOUNT DORA, FL 32757
United States

Current Price
$510,000.00
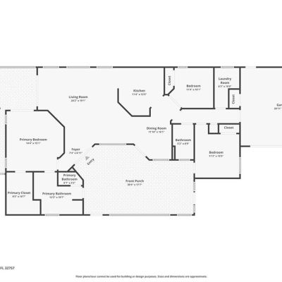
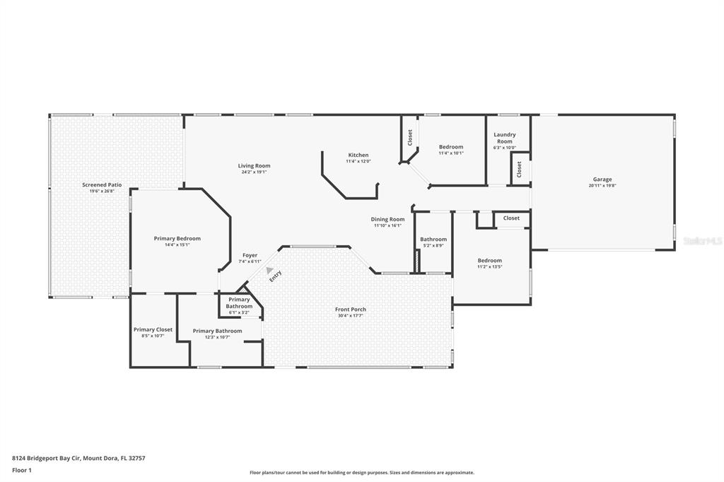
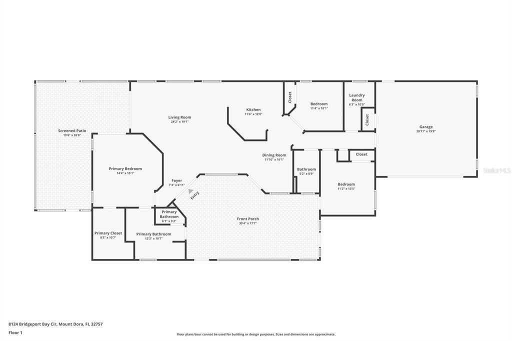
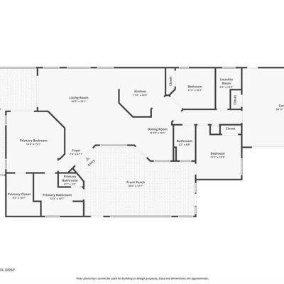
Square Feet
2153
Price Per Square Foot
$236.88
List Office Name
DAVE LOWE REALTY, INC.
List Agent Full Name
Michele Lowe
Subdivision Name
LAKES/MOUNT DORA PH 2

Interior Information

Appliances
Dishwasher, Disposal, Dryer, Gas Water Heater, Microwave, Range, Refrigerator, Tankless Water Heater, Washer
Bedrooms
3
Bathrooms
2
Bathrooms Full
2
Cooling
Central Air, Mini-Split Unit(s)
Flooring
Ceramic Tile, Engineered Hardwood, Tile, Hardwood
Heating
Central, Electric
Interior Features
Cathedral Ceiling(s), Ceiling Fan(s), Crown Molding, High Ceilings, Kitchen/Family Room Combo, Open Floorplan, Primary Bedroom Main Floor, Solid Wood Cabinets, Stone Counters, Tray Ceiling(s), Walk-In Closet(s), Window Treatments
Pet Restrictions
Please see House Rules and Regulations for more information and contact Leland Management with any questions.
Utilities
BB/HS Internet Available, Cable Available, Electricity Connected, Natural Gas Connected, Public, Sewer Connected, Sprinkler Recycled, Street Lights, Underground Utilities, Water Connected

Exterior Information

PropertySubType
Single Family Residence
Construction Materials
Block, Stucco
Exterior Features
French Doors, Irrigation System, Rain Gutters, Sidewalk
Foundation Details
Slab
Lot Size Acres
0.29
Lot Size Square Feet
12764
Roof
Shingle

Additional Information

Community Features
Clubhouse, Fitness Center, Gated Community - No Guard, Golf Carts OK, Irrigation-Reclaimed Water, Pool, Tennis Court(s)
Country
US
County / Parish
Lake
Postal Code
32757
Street Name
BRIDGEPORT BAY
Street Number
8124
Street Suffix
CIRCLE
Tax Year
2025
Total Acreage
1/4 to less than 1/2
Year Built
2012

Financial and Legal Information

Association Fee Frequency
Monthly
Association Fee Includes
Cable TV, Community Pool
Association Fee Requirement
Required
Association Fee
290
Cumulative Days On Market
1
Days On Market
1
Flood Zone Code
X
Flood Zone Date
December 12, 2012
Flood Zone Panel
12069C0380E
List Price
$510000.00
Listing Contract Date
March 3, 2026
Monthly HOA Amount
290
Original List Price
510000
Parcel Number
081927120100027300
Pets Allowed
Breed Restrictions, Cats OK, Dogs OK
Special Listing Conditions
None
Tax Annual Amount
4193.34
Tax Book Number
60-1-7
Tax Lot
273
Zoning
PUD
Tax Legal Description
LAKES OF MOUNT DORA PHASE 2 PB 60 PG 1-7 LOT 273 ORB 6162 PG 1767

Learn More About This Property

CAPTCHA
"