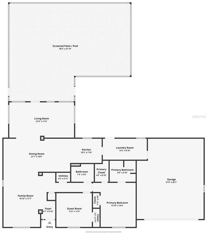
720 SHORE DRIVE

Basic Information

List Status
Active
Property Type
Residential
Last Updated
MLS Listing Updated
Created
Address

720 SHORE DRIVE
KISSIMMEE, FL 34744
United States

Current Price
$449,900.00
Square Feet
1503
Price Per Square Foot
$299.33
List Office Name
EAST PARK REALTY LLC
List Agent Full Name
Racquel Schroeder
Subdivision Name
CYPRESS SHORES REPLAT

Interior Information

Appliances
Dishwasher, Disposal, Electric Water Heater, Microwave, Range, Refrigerator
Bedrooms
2
Bathrooms
2
Bathrooms Full
2
Cooling
Central Air
Flooring
Carpet, Ceramic Tile, Hardwood
Heating
Central, Electric
Interior Features
Built-in Features, Ceiling Fan(s), Crown Molding, Living Room/Dining Room Combo, Solid Surface Counters, Solid Wood Cabinets, Stone Counters, Thermostat, Window Treatments
Pet Restrictions
PLEASE REFER TO COUNTY ZONING
Utilities
BB/HS Internet Available, Electricity Connected, Phone Available

Exterior Information

PropertySubType
Single Family Residence
Construction Materials
Block, Concrete, Stone, Stucco
Exterior Features
French Doors, Private Mailbox
Foundation Details
Slab
Lot Size Acres
0.47
Lot Size Square Feet
20386
Lot Features
Cul-De-Sac, In County, Landscaped, Level, Near Marina, Near Public Transit, Oversized Lot, Private
Roof
Shingle

Additional Information

Community Features
Canal Front, Fishing, Lake, Private Boat Ramp, Water Access, Waterfront
Country
US
County / Parish
Osceola
Postal Code
34744
Street Name
SHORE DRIVE
Street Number
720
Tax Year
2023
Total Acreage
1/4 to less than 1/2
Year Built
1975

Financial and Legal Information

Association Fee Requirement
None
Cumulative Days On Market
508
Days On Market
508
Flood Zone Code
X
Flood Zone Date
June 6, 2013
Flood Zone Panel
12097C0067G
List Price
$449900.00
Listing Contract Date
June 6, 2024
Original List Price
510000
Parcel Number
262529291000010290
Pets Allowed
Yes
Special Listing Conditions
None
Tax Annual Amount
1440
Tax Book Number
1/387
Tax Lot
0290
Zoning
ORS1
Tax Legal Description
CYPRESS SHORES REP PB 1 PG 387 LOT 29

Learn More About This Property

CAPTCHA
"