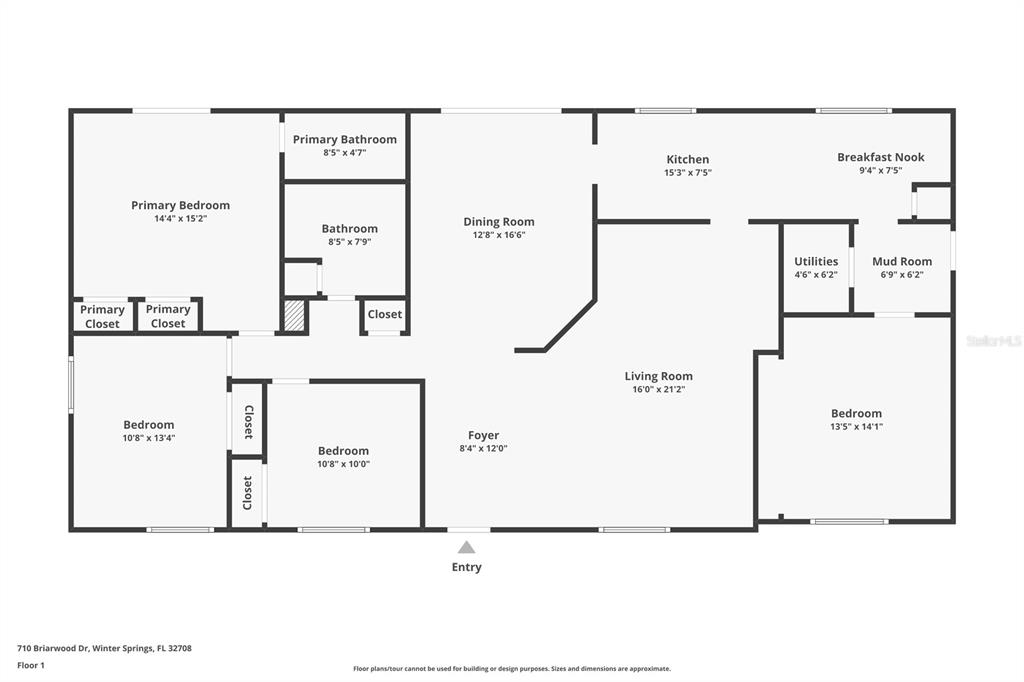
710 BRIARWOOD

Basic Information

List Status
Active
Property Type
Residential
Last Updated
MLS Listing Updated
Created
Address

710 BRIARWOOD
WINTER SPRINGS, FL 32708
United States

Current Price
$409,000.00
Square Feet
1769
Price Per Square Foot
$231.20
List Office Name
CREEGAN GROUP
List Agent Full Name
Hank Paxson
Subdivision Name
WILDWOOD

Interior Information

Appliances
Dishwasher, Disposal, Microwave, Range, Refrigerator
Bedrooms
4
Bathrooms
2
Bathrooms Full
2
Cooling
Central Air
Flooring
Ceramic Tile, Luxury Vinyl
Heating
Central
Interior Features
Ceiling Fan(s), Open Floorplan, Split Bedroom
Utilities
Cable Available, Electricity Connected

Exterior Information

PropertySubType
Single Family Residence
Construction Materials
Stucco, Wood Frame
Exterior Features
Lighting, Sliding Doors
Foundation Details
Slab
Lot Size Acres
0.20
Lot Size Square Feet
8552
Roof
Shingle

Additional Information

Country
US
County / Parish
Seminole
Postal Code
32708
Street Name
BRIARWOOD
Street Number
710
Street Suffix
DRIVE
Tax Year
2025
Total Acreage
0 to less than 1/4
Year Built
1974

Financial and Legal Information

Association Fee Frequency
Monthly
Association Fee Requirement
Required
Association Fee
80
Cumulative Days On Market
1
Days On Market
1
Flood Zone Code
X
List Price
$409000.00
Listing Contract Date
February 2, 2026
Monthly HOA Amount
80
Original List Price
409000
Parcel Number
2820305DL00000650
Pets Allowed
Yes
Special Listing Conditions
None
Tax Annual Amount
4070.84
Tax Book Number
19-7
Tax Lot
65
Zoning
PUD
Tax Legal Description
LOT 65 WILDWOOD PB 19 PGS 7 TO 10

Learn More About This Property

CAPTCHA
"