650 PINE

Basic Information

List Status
Active
Property Type
Residential
Last Updated
MLS Listing Updated
Created
Address

650 PINE
NEW SMYRNA BEACH, FL 32169
United States

Current Price
$619,000.00
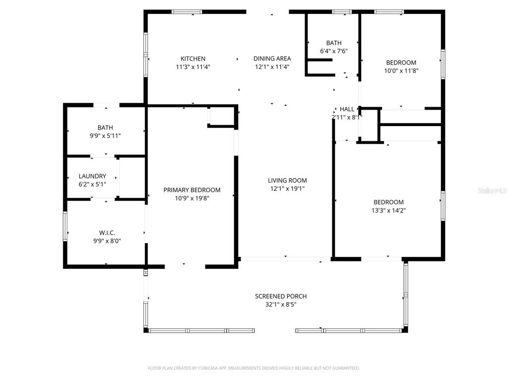
Square Feet
1426
Price Per Square Foot
$434.08
List Office Name
GLORY INTL. REAL ESTATE CO
List Agent Full Name
Tommy Roberts
Subdivision Name
DETWILERS ADD 01 NEW SMYRNA BCH

Interior Information

Appliances
Dishwasher, Disposal, Dryer, Gas Water Heater, Ice Maker, Microwave, Range, Refrigerator, Washer
Bedrooms
3
Bathrooms
2
Bathrooms Full
2
Cooling
Central Air
Flooring
Ceramic Tile, Terrazzo
Heating
Central
Interior Features
Ceiling Fan(s)
Utilities
Electricity Connected, Natural Gas Connected, Sewer Connected

Exterior Information

PropertySubType
Single Family Residence
Construction Materials
Block
Exterior Features
French Doors, Outdoor Kitchen, Private Mailbox, Storage
Foundation Details
Block
Lot Size Acres
0.15
Lot Size Square Feet
6700
Roof
Metal

Additional Information

Country
US
County / Parish
Volusia
Postal Code
32169
Street Name
PINE
Street Number
650
Street Suffix
STREET
Tax Year
2024
Total Acreage
0 to less than 1/4
Year Built
1957

Financial and Legal Information

Cumulative Days On Market
216
Days On Market
43
Flood Zone Code
AE
Flood Zone Date
September 9, 2017
Flood Zone Panel
12127C0544J
List Price
$619000.00
Listing Contract Date
November 11, 2025
Original List Price
619000
Parcel Number
741605190390
Special Listing Conditions
None
Tax Annual Amount
2053
Tax Book Number
7-85
Tax Lot
38
Zoning
10R2
Tax Legal Description
N 1/3 OF LOT 38 & LOT 39 BLK 19 DETWILERS 1ST ADD NEW SMYRNA MB 7 PG 85 PER OR 4447 PG 1208 PER OR 7117 PG 3386 PER OR 8561 PG 1921

Learn More About This Property

CAPTCHA
"