6129 GREEN

Basic Information

List Status
Active
Property Type
Residential
Last Updated
MLS Listing Updated
Created
Address

6129 GREEN
LAKELAND, FL 33810
United States

Current Price
$364,900.00
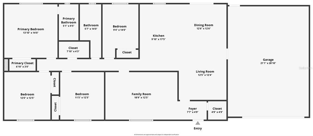
Square Feet
1829
Price Per Square Foot
$199.51
List Office Name
HARPER REALTY FL, LLC
List Agent Full Name
Paula Shields
Subdivision Name
PALMORE ESTS

Interior Information

Appliances
Dishwasher, Range, Refrigerator
Bedrooms
4
Bathrooms
2
Bathrooms Full
2
Cooling
Central Air
Flooring
Carpet, Vinyl
Heating
Central
Interior Features
Eating Space In Kitchen, Primary Bedroom Main Floor, Solid Wood Cabinets
Utilities
Electricity Connected

Exterior Information

PropertySubType
Single Family Residence
Construction Materials
Brick, Wood Frame
Exterior Features
Private Yard
Foundation Details
Slab
Lot Size Acres
0.94
Lot Size Square Feet
40999
Roof
Shingle

Additional Information

Country
US
County / Parish
Polk
Postal Code
33810
Street Name
GREEN
Street Number
6129
Street Suffix
ROAD
Tax Year
2025
Total Acreage
1/2 to less than 1
Year Built
1977

Financial and Legal Information

Cumulative Days On Market
1
Days On Market
1
Flood Zone Code
X
Flood Zone Date
December 12, 2016
Flood Zone Panel
12105C0301G
List Price
$364900.00
Listing Contract Date
February 2, 2026
Original List Price
364900
Parcel Number
232723000000032070
Special Listing Conditions
None
Tax Annual Amount
1494
Tax Book Number
P-81
Tax Lot
3
Zoning
RC
Tax Legal Description
N 155 FT OF S 490 FT OF SE1/4 OF NW1/4 LESS E 1036.9 FT BEING LOT 3 OF UNRE PALMORE ESTS UNIT 1 LESS RD R/W ON W SIDE THEREOF PER OR 864-369

Learn More About This Property

CAPTCHA
"