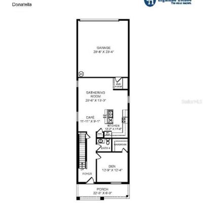
576 MOSSY WOOD

Basic Information

List Status
Active
Property Type
Residential
Last Updated
MLS Listing Updated
Created
Address

576 MOSSY WOOD
ST CLOUD, FL 34771
United States

Current Price
$427,575.00
Square Feet
2335
Price Per Square Foot
$183.12
List Office Name
CAMBRIDGE REALTY OF CENTRAL FL
List Agent Full Name
George Lindsey, III
Subdivision Name
THE CROSSINGS PH 2

Interior Information

Appliances
Dishwasher, Disposal, Electric Water Heater, Microwave, Range, Refrigerator
Bedrooms
4
Bathrooms
4
Bathrooms Full
3
Bathrooms Half
1
Cooling
Central Air
Flooring
Carpet
Heating
Central
Interior Features
In Wall Pest System
Utilities
Cable Available

Exterior Information

PropertySubType
Single Family Residence
Construction Materials
Block
Exterior Features
Irrigation System
Foundation Details
Slab
Lot Size Acres
0.08
Lot Size Square Feet
3485
Roof
Shingle

Additional Information

Country
US
County / Parish
Osceola
Postal Code
34771
Street Name
MOSSY WOOD
Street Number
576
Street Suffix
LANE
Tax Year
2025
Total Acreage
0 to less than 1/4
Year Built
2026

Financial and Legal Information

Association Fee Frequency
Annually
Association Fee Requirement
Required
Association Fee
115
Cumulative Days On Market
68
Days On Market
68
Flood Zone Code
x
List Price
$427575.00
Listing Contract Date
February 2, 2026
Monthly HOA Amount
9.58
Original List Price
427575
Parcel Number
222531368200012890
Pets Allowed
Yes
Special Listing Conditions
None
Tax Book Number
36/95-109
Tax Lot
289
Zoning
PUD
Tax Legal Description
CROSSINGS PH 2 PB 36 PGS 95-109 LOT 289

Learn More About This Property

CAPTCHA
"

Heading replace