5460 BOUTIN

Basic Information

List Status
Active
Property Type
Residential
Last Updated
MLS Listing Updated
Created
Address

5460 BOUTIN
ST CLOUD, FL 34772
United States

Current Price
$599,999.00
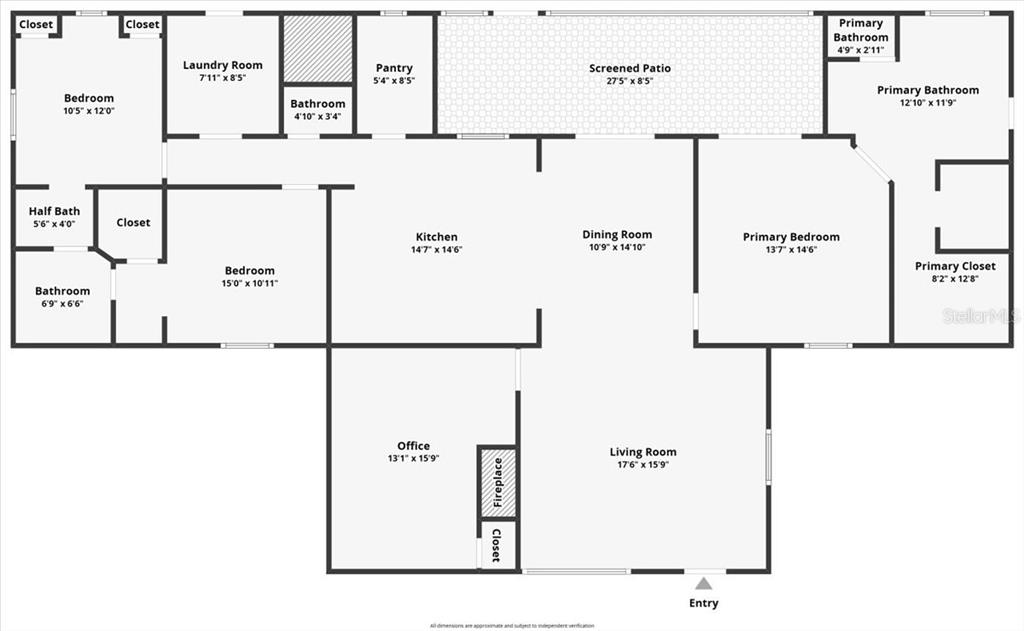
Square Feet
2276
Price Per Square Foot
$263.62
List Office Name
RED DOOR INVESTMENT GRP LLC
List Agent Full Name
Amanda Beckman Ochs
Subdivision Name
S L & I C

Interior Information

Appliances
Bar Fridge, Built-In Oven, Dishwasher, Disposal, Exhaust Fan, Gas Water Heater, Range, Range Hood, Touchless Faucet, Water Filtration System
Bedrooms
4
Bathrooms
3
Bathrooms Full
2
Bathrooms Half
1
Cooling
Central Air
Flooring
Carpet, Tile
Heating
Natural Gas
Interior Features
Ceiling Fan(s), High Ceilings, Living Room/Dining Room Combo, Open Floorplan, Primary Bedroom Main Floor, Solid Wood Cabinets, Thermostat, Walk-In Closet(s)
Utilities
Cable Available, Cable Connected, Electricity Available, Electricity Connected, Natural Gas Available, Natural Gas Connected, Phone Available, Public

Exterior Information

PropertySubType
Single Family Residence
Construction Materials
Block, Metal Siding
Exterior Features
Fire Pit, French Doors, Lighting, Outdoor Shower, Private Entrance, Private Mailbox, Private Yard, Rain Gutters, RV Hookup, Storage
Foundation Details
Slab
Lot Size Acres
1.20
Lot Size Square Feet
52446
Lot Features
Flood Insurance Required, FloodZone, Landscaped
Roof
Other

Additional Information

Country
US
County / Parish
Osceola
Postal Code
34772
Street Name
BOUTIN
Street Number
5460
Street Suffix
LANE
Tax Year
2024
Total Acreage
1 to less than 2
Year Built
2004

Financial and Legal Information

Cumulative Days On Market
128
Days On Market
128
Flood Zone Code
AE
Flood Zone Date
June 6, 2013
Flood Zone Panel
12097C0290G
List Price
$599999.00
Listing Contract Date
November 11, 2025
Original List Price
649900
Parcel Number
33263149500001069A
Special Listing Conditions
None
Tax Annual Amount
5677.99
Tax Book Number
B-29
Tax Lot
69
Zoning
OAE1
Tax Legal Description
S L & I C PB B PG 29 W 166.98 FT LOT 69 LESS N 12.5 FT

Learn More About This Property

CAPTCHA
"