521 CARDINAL

Basic Information

List Status
Active
Property Type
Residential
Last Updated
MLS Listing Updated
Created
Address

521 CARDINAL
POINCIANA, FL 34759
United States

Current Price
$249,990.00
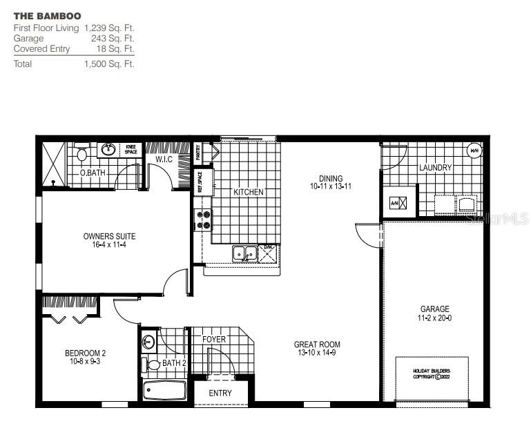
Square Feet
1239
Price Per Square Foot
$201.77
List Office Name
HOLIDAY BUILDERS GULF COAST
List Agent Full Name
Trish Lohela
Subdivision Name
POINCIANA NEIGHBORHOOD 5 NORTH VILLAGE 3

Interior Information

Appliances
Dishwasher, Electric Water Heater, Range
Bedrooms
2
Bathrooms
2
Bathrooms Full
2
Cooling
Central Air
Flooring
Carpet, Vinyl
Heating
Central, Electric
Interior Features
Open Floorplan, Primary Bedroom Main Floor, Thermostat, Walk-In Closet(s)
Utilities
Electricity Available, Electricity Connected, Public, Underground Utilities, Water Available, Water Connected

Exterior Information

PropertySubType
Single Family Residence
Construction Materials
Block, Stucco
Exterior Features
Sliding Doors
Foundation Details
Slab
Lot Size Acres
0.22
Lot Size Square Feet
9500
Roof
Shingle

Additional Information

Country
US
County / Parish
Polk
Postal Code
34759
Street Name
CARDINAL
Street Number
521
Street Suffix
DRIVE
Tax Year
2023
Total Acreage
0 to less than 1/4
Year Built
2025

Financial and Legal Information

Association Fee Frequency
Annually
Association Fee Requirement
Required
Association Fee
1020
Cumulative Days On Market
227
Days On Market
227
Flood Zone Code
X
List Price
$249990.00
Listing Contract Date
February 2, 2025
Monthly HOA Amount
85
Number Of Pets
2
Original List Price
286990
Parcel Number
282725934060075111
Pets Allowed
Yes
Special Listing Conditions
None
Tax Annual Amount
413
Tax Book Number
PG 54
Tax Lot
115
Zoning
RES
Tax Legal Description
POINCIANA NEIGHBORHOOD 5 NORTH VILLAGE 3 PB 54 PGS 27/42 BLK 751 LOT 115

Learn More About This Property

CAPTCHA
"