502 GOLFPARK
Basic Information
List Status
Active
Property Type
Residential
Address
502 GOLFPARK
CELEBRATION, FL 34747
United States
Current Price
$2,500,000.00
Square Feet
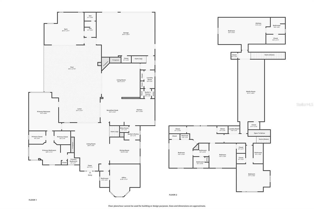
5865
Price Per Square Foot
$426.26
List Office Name
IMAGINATION REALTY, INC
List Agent Full Name
Jennifer Schreiber
Subdivision Name
CELEBRATION VILLAGE
Interior Information
Appliances
Built-In Oven, Convection Oven, Cooktop, Dishwasher, Disposal, Dryer, Electric Water Heater, Freezer, Ice Maker, Microwave, Refrigerator, Washer, Wine Refrigerator
Bedrooms
6
Bathrooms
6
Bathrooms Full
5
Bathrooms Half
1
Cooling
Central Air, Zoned
Flooring
Carpet, Ceramic Tile, Luxury Vinyl
Heating
Central
Interior Features
Ceiling Fan(s), Crown Molding, Eating Space In Kitchen, Primary Bedroom Main Floor, Sauna, Skylight(s), Walk-In Closet(s), Window Treatments
Pet Restrictions
See HOA Covenants
Utilities
Cable Available, Electricity Connected, Fiber Optics, Sprinkler Recycled, Street Lights, Underground Utilities, Water Connected
Exterior Information
PropertySubType
Single Family Residence
Construction Materials
Block, Cement Siding
Exterior Features
French Doors, Sauna
Foundation Details
Slab
Lot Size Acres
0.24
Lot Size Square Feet
10593
Lot Features
In County, Oversized Lot, Sidewalk, Unincorporated
Roof
Shingle
Additional Information
Community Features
Lake, Deed Restrictions, Dog Park, Fitness Center, Golf, Park, Playground, Pool, Restaurant, Sidewalks, Tennis Court(s)
Country
US
County / Parish
Osceola
Postal Code
34747
Street Name
GOLFPARK
Street Number
502
Street Suffix
DRIVE
Tax Year
2025
Total Acreage
0 to less than 1/4
Year Built
1999
Financial and Legal Information
Association Fee Frequency
Quarterly
Association Fee Requirement
Required
Association Fee
445.59
Cumulative Days On Market
108
Days On Market
108
Flood Zone Code
X
Flood Zone Date
August 8, 2025
Flood Zone Panel
12097C0035G
List Price
$2500000.00
Listing Contract Date
November 11, 2025
Monthly HOA Amount
148.53
Original List Price
2500000
Parcel Number
072528278300013030
Pets Allowed
Breed Restrictions, Yes
Special Listing Conditions
None
Tax Annual Amount
17278.85
Tax Book Number
6515-1690
Tax Lot
3030
Zoning
OPUD
Tax Legal Description
Celebration Village Unit 2 PB 8 PGS 185-212 LOT 303 08/25/28