501 MAIN

Basic Information

List Status
Active
Property Type
Residential
Last Updated
MLS Listing Updated
Created
Address

501 MAIN
LAKE HAMILTON, FL 33851
United States

Current Price
$499,999.00
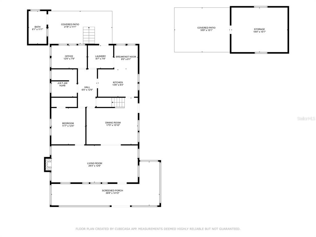
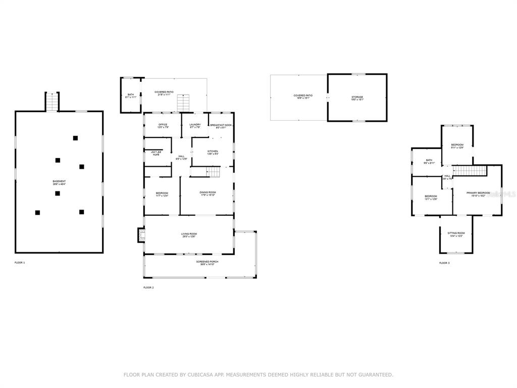
Square Feet
2238
Price Per Square Foot
$223.41
List Office Name
KELLER WILLIAMS REALTY SMART 1
List Agent Full Name
Lisa Simpson
Subdivision Name
LAKE HAMILTON

Interior Information

Appliances
Dishwasher, Dryer, Range, Refrigerator, Washer, Water Filtration System
Bedrooms
4
Bathrooms
3
Bathrooms Full
3
Cooling
Central Air
Flooring
Hardwood
Heating
Central
Interior Features
Built-in Features, Ceiling Fan(s), Crown Molding, Eating Space In Kitchen, High Ceilings, Stone Counters
Utilities
Electricity Connected, Natural Gas Available, Public

Exterior Information

PropertySubType
Single Family Residence
Construction Materials
Stucco
Exterior Features
Irrigation System, Lighting
Foundation Details
Basement
Lot Size Acres
0.67
Lot Size Square Feet
29085
Lot Features
City Lot, Landscaped
Roof
Metal

Additional Information

Country
US
County / Parish
Polk
Postal Code
33851
Street Name
MAIN
Street Number
501
Street Suffix
STREET
Tax Year
2024
Total Acreage
1/2 to less than 1
Year Built
1923

Financial and Legal Information

Cumulative Days On Market
361
Days On Market
361
Flood Zone Code
X
List Price
$499999.00
Listing Contract Date
April 4, 2025
Original List Price
549900
Parcel Number
272816823000019062
Special Listing Conditions
None
Tax Annual Amount
3179.28
Tax Book Number
3A-34
Tax Lot
6
Tax Legal Description
LAKE HAMILTON PB 3A PG 34 BLK 19 LOTS 6 & 7 LESS W 83 FT

Learn More About This Property

CAPTCHA
"

Heading replace