493 APOPKA HILLS

Basic Information

List Status
Active
Property Type
Residential
Last Updated
MLS Listing Updated
Created
Address

493 APOPKA HILLS
APOPKA, FL 32703
United States

Current Price
$229,900.00
Square Feet
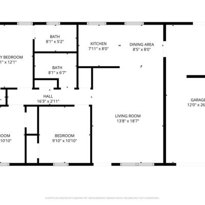
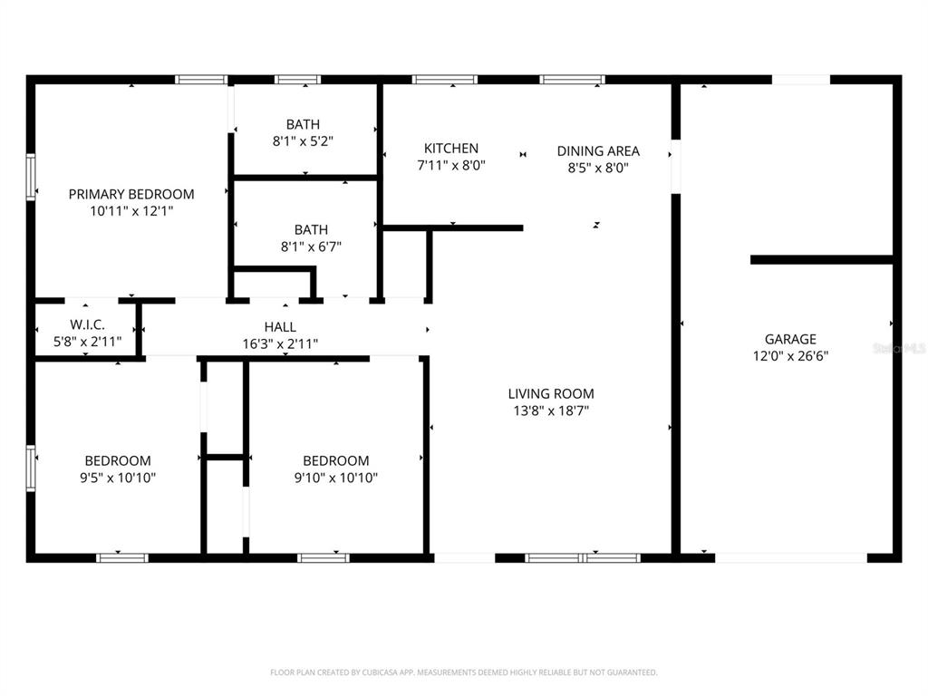
1064
Price Per Square Foot
$216.07
List Office Name
HOUWZER INC
List Agent Full Name
Ileana Perez
Subdivision Name
WEST APOPKA HILLS

Interior Information

Appliances
Range, Refrigerator
Bedrooms
3
Bathrooms
2
Bathrooms Full
2
Cooling
Central Air
Flooring
Ceramic Tile
Heating
Central
Interior Features
Ceiling Fan(s), Kitchen/Family Room Combo, Thermostat
Utilities
Electricity Connected

Exterior Information

PropertySubType
Single Family Residence
Construction Materials
Block
Exterior Features
Sidewalk
Foundation Details
Slab
Lot Size Acres
0.14
Lot Size Square Feet
6033
Lot Features
Corner Lot
Roof
Shingle

Additional Information

Country
US
County / Parish
Orange
Postal Code
32703
Street Name
APOPKA HILLS
Street Number
493
Street Suffix
CIRCLE
Tax Year
2025
Total Acreage
0 to less than 1/4
Year Built
1992

Financial and Legal Information

Cumulative Days On Market
1
Days On Market
1
Flood Zone Code
X
List Price
$229900.00
Listing Contract Date
December 12, 2025
Original List Price
229900
Parcel Number
162128914100600
Special Listing Conditions
None
Tax Annual Amount
3615.92
Tax Book Number
0026/0078
Tax Lot
600
Zoning
R-3
Tax Legal Description
WEST APOPKA HILLS 26/78 LOT 60

Learn More About This Property

CAPTCHA
"